0
ETI    SIEMENS    ABB    WIKA    IFM    ELKO EP    HYUNDAI    VEGA    KSR KUEBLER    Johnson Controls    Siemens IA/DT (CA01)    Bosch Rexroth    Alfa Laval    SICK    Others  

Twinhead CLV691

Код: 1061481
Связатся с нами: 067 285 7770

В корзину

Показать всё Скрыть всё

  • Характеристики
    Закрытая ширина дорожки800 mm
    ФокусАвтофокус
    Класс лазера

    2 (IEC 60825-1:2014)

    1 (IEC 60825-1:2014)

    ОбогревОпция
    Средняя наработка на отказ100.000 h
    MTTR5 min
    Области применения

    Простые универсальные приложения (OMNI)

    Процессы сортировки

    Восстановление доходов

    Поступление товара

    Область примененияIndoor
    Исполнение сканераЛинейный сканер
    Вид транспортного оборудования

    Ленточный транспортер

    Устройство для сортировки поддонов

    Роликовый транспортер

    Поперечный ленточный конвейер

    Поддон

    Количество основных компонентовЛазерный сканер: 2
  • Производительность
    Скорость транспортировки0,1 m/s ... 2,5 m/s, в зависимости от величины кода
    Минимальный промежуток между объектами50 mm
    Количество кодов на считывающий проход1 ... 50
    Количество кодов на одно сканирование

    1 ... 20, Стандартный декодер

    1 ... 6, Декодер SMART

  • Интерфейсы
    Последовательный (RS-232, RS-422/-485)
    ФункцияHostAUX
    Скорость передачи данныхHost: 300 бод ... 500 кбод, AUX: 57,6 кбод, пост.
    Ethernet✔ , в зависимости от применяемого совместимого разъема
    ФункцияHostAUX
    Скорость передачи данных10/100 Мбит/с
    ПротоколTCP/IP
    CAN-шина✔ (2)
    ФункцияДатчики фирмы «SICK» на базе локальной сети контроллеров CAN (ведущий / ведомый)
    Скорость передачи данных20 kbit/s ... 1 Mbit/s
    ПротоколCSN (SICK CAN Sensor Network)
    Оптическая индикация6, LEDs, Ready, Result, Лазер, Гистограмма параметров «Data, CAN, LNK TX» для индикации процентных значений скорости считывания (10 светодиодов)
  • Механика/электроника
    Размеры, система (Д x Ш x В)1.100 mm x 1.280 mm x 1.745 mm
    Соединительные модулиCDM420-0007
    Рамка

    Стандарт

    По спецификации заказчика

  • Данные окружающей среды
    Рабочий диапазон температур

    0 °C ... +40 °C

    –35 °C ... +35 °C, с подогревом

    Диапазон температур при хранении–20 °C ... +70 °C
  • Общие указания
    Комплект поставки

    Сканер штриховых кодов CLV69x

    Системно-ориентированный линейный сканер или линейный сканер с колеблющимся зеркалом ( 2 шт.)

    Совместимый разъем для сканера штриховых кодов CLV69x (2 шт.)

    Системно-ориентированный держатель для линейного сканера или линейного сканера с колеблющимся зеркалом

    Соединительный модуль CDM420-0007

    Соединительный кабель для подключения сканера штриховых кодов к соединительному модулю (2 шт.)

    Применение

    Ритейл и складирование

    Курьерская и почтовая службы

  • Классификации
    ECl@ss 5.027280102
    ECl@ss 5.1.427280102
    ECl@ss 6.027280102
    ECl@ss 6.227280102
    ECl@ss 7.027280102
    ECl@ss 8.027280102
    ECl@ss 8.127280102
    ECl@ss 9.027280102
    ETIM 5.0EC002550
    ETIM 6.0EC002550
    UNSPSC 16.090143211701
Показать всё Скрыть всё

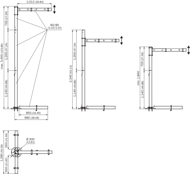
Технические чертежи

Габаритный чертеж Тwinhead CLV65x и Twinhead CLV69x Вид: Галерея Список Показать всё Скрыть всё
Показать всё Скрыть всё