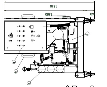
Система очистки масла
схема установки очистки очистки масла с нагревательным модулем (пластинчатый теплообменник)
![]() |
![]() |

В процессе модернизации атомной станции был смонтирован и установлен сепарационный системный модуль для очистки отработанного технического масла. Сепарация происходит в барабане сепаратора с накоплением шлама.
Барабан может быть собран как для режима пурификации, так и для кларификации. В обоих случаях загрязненное масло/топливо поступает в сепаратор через распределитель, и под действием центробежной силы разбивается на фазы. Самая тяжелая фаза (шлам и вода) отбрасываются на периферию барабана. Накопленный шлам вручную периодически удаляется из барабана.
Для эффективной очистки масла в данной установке предусмотрен нагреватель. Поддержание заданной температуры нагревателя, контроль работы сепаратора, вывод информационных и аварийных сообщений осуществляется диспетчером установки посредством блоком/блоками управления - локальный и дистанционный.
Дистанционный блок(модуль) управления позволяет контролировать и управлять рабочими параметрами всей установки, диспетчеру находясь вне зоны повышенной опасности.
Данная установка может использоваться также для для очистки дистиллятных и дизельных топлив, минеральных смазочных масел на судах и береговых станциях.
При изменении в конструкции, Система может быть использована в пищевой промышленности, для сепарации пищевых жидкостей и масла.
Инженерное Бюро ООО Авиган выполняет заказы для изготовления сепарационных модулей на основе оборудования ALFA LAVAL .
тел. +38(094)9542547


