0

Разделы

Скачать Заказные данные 
Бобина для хранения калибровочных цепей Milltronics

Бобина для хранения калибровочных цепей используется для хранения калибровочных цепей. Все бобины для хранения калибровочных цепей поставляются с мотор-редуктором и тормозом.

 


Особенности

Скачать Заказные данные 
Бобина для хранения калибровочных цепей Milltronics
  • Устанавливается на существующий конвейер, над лентой
  • Автоматическая калибровка цепями, без участия обслуживающего персонала
  • Простая и быстрая калибровка

 

 


Область применения

Скачать Заказные данные 
Бобина для хранения калибровочных цепей Milltronics

Катушка для хранения испытательных калибровочных цепей Milltronics обеспечивает автоматизированное применение и сокращение количества испытательных цепей. Катушка гарантируют безопасное и быстрое использование испытательных цепей калибровки. Она разработана для использования в условиях, когда тестирование материалом не может быть выполнено, катушка для хранения цепей может быть использована на любых конвейерных весах и при любой геометрии конвейера. Для выполнения тестов на линейность катушка позволяет воспроизвести различные значения веса. У катушки есть интегрированный тормоз двигателя, гарантирующий, что испытательные цепи не разматаются во время отключений электроэнергии или подаче материала.

 


Технические данные

Скачать Заказные данные 
Бобина для хранения калибровочных цепей Milltronics

 

Технические параметры

 

Условия эксплуатации

 

Температура окружающей среды

-10 to +60 °C

Корпус

  • Металлическая конструкция, окрашенная полимерной порошковой краской
  • 10 мм оцинкованный трос для намотки цепи
  • Самовыравнивающиеся опорные подшипники

Катушка

до 1524 мм

Намотка цепи от 7-10 обор./мин.

Двигатель

3-х фазный двигатель с винтовым коническим редуктором TEFC, AC,

Разрешения и допуски

CE, C-TICK

 

 


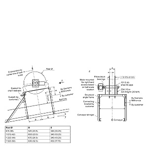
Чертеж

Скачать Заказные данные 
Бобина для хранения калибровочных цепей Milltronics

 

Размеры бобины для хранения калибровочных цепей Milltronics

 


Заказные данные

Скачать Заказные данные 

Цена на сайте указана розничная в ЕВРО без учета НДС.Для уточнения цены и размера предоставляемой скидки - звоните или присылайте заявки

Заказной номерPGОписание продуктаЦена
7MH7163-.....-..8ZMMILLTRONICS TEST CHAIN STORAGE REELS: TEST CHAIN STORAGE REELS ARE USED TO STORE ROLLER TEST CHAINS. ALL TEST CHAIN STORAGE REELS COME WITH A GEARED BRAKE MOTOR. 0.00

 


Аксессуары

Скачать Заказные данные 

Цена на сайте указана розничная в ЕВРО без учета НДС.Для уточнения цены и размера предоставляемой скидки - звоните или присылайте заявки

Заказной номерPGОписание продуктаЦена
7ML1998-5JD018ZMинструкция по эксплуатации, MILLTRONICS, английский 12.72