0

Разделы

Компактные преобразователи SINAMICS G120C

SINAMICS G120C типоразмеры FSA, FSB и FSC с установленной глухой крышкой

Компактный преобразователь SINAMICS G120C предлагает взвешанную комбинацию возможностей для универсального использования.

Преобразователь частоты SINAMICS G120C это компактный, надежный и простой в обслуживании преобразователь, который по выбору может быть оснащен базовой или интеллектуальной панелью оператора.

SINAMICS G120C специально адаптирован к требованиям системных интеграторов, OEM и дистрибьюторов в том, что касается высокой производительности и оптимально подобранных рабочих характеристик.

 


Особенности

Компактные преобразователи SINAMICS G120C
  • компактная конструкция
  • установка бок-о-бок
  • высокая удельная мощность, небольшой объем
  • простой монтаж в ограниченном пространстве
  • небольшая занимаемая площадь
  • использование в маленьких электрошкафах, в непосредственной близости от оборудования
  • оптимальный набор параметров
  • оптимизированный процесс ввода в эксплуатацию
  • "Советы по началу работы" прилагаются
  • возможность использования панелей оператора BOP-2 или IOP
  • встроенный USB-разъем
  • простое и быстрое программное параметрирование
  • простое удобное управление при вводе в эксплуатацию и текущей работе
  • минимум необходимого обучения, использование уже имеющихся ноу-хау SINAMICS
  • высокая надежность, простое ТО
  • вставные клеммы
  • функция "клонирования" через BOP-2 или карту SD
  • счетчик часов работы на "Привод вкл." и "Двигатель вкл."
  • быстрый механический монтаж
  • интуитивно понятный серийный ввод в эксплуатацию
  • составная часть Комплексной автоматизации
  • энергоэффективное векторное управление без датчика
  • автоматическое уменьшение потока с U/f ECO
  • встроенный калькулятор энергосбережения
  • Safety Integrated (STO)
  • встроенные коммуникационные интерфейсы DP, CAN, USS, Modbus RTU)
  • окрашенные модули
  • эксплуатация до температуры окружающей среды 60°

 


Дизайн

Компактные преобразователи SINAMICS G120C

SINAMICS G120C это компактный преобразователь со степенью защиты IP20, объединяющий в одном устройстве такие функциональные блоки, как управляющий модуль (CU) и силовой модуль (PM).

Малогабаритная механическая конструкция и высокая удельная мощность позволяют выполнить очень компактный монтаж в распредшкафы станков и в электрошкафы. Компактный преобразователь SINAMICS G120C может быть смонтирован бок-о-бок, без ухудшения характеристик.

SINAMICS G120C типоразмер FSB с BOP-2

Интеграция SINAMICS G120C в самые разные приложения возможна по выбору через встроенные цифровые и аналоговые входы или через встроенный интерфейс полевой шины (имеется у вариантов USS/Modbus RTU, PROFIBUS-DP, CANopen). В частности, варианты изделия со встроенным интерфейсом PROFIBUS-DP обеспечивают полную интеграцию в систему TIA от Siemens и использование преимуществ унифицированной линейки продуктов TIA. SINAMICS G120C настроены на заводе для возможности прямого использования без параметрирования в системах полевых шин PROFIBUS-DP и CANopen.

Дополнительно SINAMICS G120C стандартно оснащается Safety-функцией STO (Safe Torque Off) для безопасной остановки приводов.Тем самым машиностроители могут исполнять актуальные Директивы по машинному оборудованию просто и с минимальными затратами. SINAMICS G120C может управлять асинхронными двигателями в диапазоне мощностей от 0,37 кВт до 18,5 кВт (0,75 л.с. до 20 л.с.).

Надежная и эффективная работа двигателя достигается за счет применения самой современной технологии IGBT в комбинации с модернизированным векторным управлением. Кроме этого, интегрированные в SINAMICS G120C обширные защитные функции предлагают надежную защиту для преобразователя и двигателя.

Компоненты со стороны сети

Сетевые дроссели

Сетевой дроссель используется для сглаживания пиков напряжения (защита преобразователя) и уменьшения провалов коммутации (обратные воздействия на сеть).

Рекомендованные активные компоненты со стороны сети

Для SINAMICS G120C можно использовать стандартные предохранители. Параметры при этом должны выбираться согласно действующим на месте правилам. В настоящей главе перечислены такие рекомендованные компоненты, как предохранители и силовые выключатели, согласно требованиям IEC и UL.

Компоненты промежуточного контура

Тормозные резисторы

Через тормозной резистор отводится избыточная энергия промежуточного контура. Тормозные резисторы предназначены для использования с SINAMICS G120C. Он оборудован встроенным тормозным прерывателем (электронный выключатель).

Дополнительные системные компоненты

Интеллектуальная панель оператора IOP

Графическая, удобная для пользователя и мощная панель оператора для ввода в эксплуатацию и диагностики, а также для локального управления и наблюдением SINAMICS G120C.

Базовая панель оператора BOP-2

2-рядный дисплей для поддержки ввода в эксплуатацию и диагностики привода. Возможно локальное управление приводом.

Карты памяти

На карты памяти SINAMICS Micro Memory Card (MMC) или SIMATIC Memory Card (SD-Karte) можно сохранить параметрирование пробразователя. При сервисном обслуживании установка, к примеру, после замены преобразователя и передачи данных с карты памяти, снова сразу же готова к работе. Соответствующий держатель карт встроен в преобразователь.

Комплект для соединения PC-преобразователь - 2

Для управления и ввода в эксплуатацию преобразователя непосредственно с PC, если на нем установлено соответствующее ПО для ввода в эксплуатацию STARTER от V4.2.

Запасные части

Пластины для экрана

Можно заказать комплект пластин для экрана для кабеля двигателя и сигнальных кабелей согласно типоразмеру SINAMICS G120C..

Комплект запасных частей

Комплект состоит из 5 наборов I/O-клемм, 1 шт. клемма RS485, 2 шт. дверцы управляющего модуля и 1 шт. глухая крышка.

Набор соединительных штекеров

Можно заказать набор соединительных штекеров для подводки из сети, тормозного резистора и кабеля двигателя типоразмера SINAMICS G120C.

Верхний вентилятор

Может быть заказан верхний вентилятор (верхняя часть устройства), состоящий из предварительного смонтированного блока держателя и вентиляторов согласно типоразмеру SINAMICS G120C.

Блок вентилятора

Можно заказать запасной вентилятор (задняя сторона устройства; радиатор), состоящий из предварительного смонтированного узла из держателя и вентиляторов согласно типоразмеру SINAMICS G120C.

 


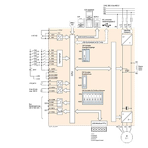
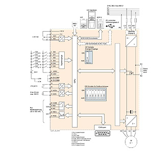
Интеграция

Компактные преобразователи SINAMICS G120C

Пример подключения SINAMICS G120C, вариант USS/Modbus RTU

 

Пример подключения SINAMICS G120C, вариант PROFIBUS DP

 

Пример подключения SINAMICS G120C, вариант CANopen

 


Конфигурация

Компактные преобразователи SINAMICS G120C

Для компактных преобразователей SINAMICS G120C предлагаются следующие электронные вспомогательные средства для проектирования и ПО для технических разработок:

Помощь в выборе DT-конфигуратор в CA 01

Более чем 100000 продуктов приблизительно с 5 млн. возможных вариантов из области приводной техники находятся в интерактивном каталоге CA 01 – Offline Mall от Siemens Industry Automation & Drive Technologies. Для упрощения выбора подходящего двигателя и/или преобразователя из всего обширного спектра стандартных продуктов, был разработан DT конфигуратор, интегрированной в качестве "помощи в выборе и проектировании" в это каталог на DVD.

Online DT-конфигуратор

Дополнительно DT-конфигуратор может использоваться и без установки в Интернете. По следующему адресу можно найти DT-конфигуратор в Industry Mall от Siemens:http://www.siemens.com/dt-configurator

ПО для проектирования SIZER для приводов Siemens

Удобное проектирование линейки приводов SINAMICS и MICROMASTER 4 осуществляется с помощью инструмента проектирования SIZER для приводов Siemens. Он оказывает поддержку при техническом планировании необходимых для решения определенной задачи привода аппаратных и микропрограммных компонентов. SIZER для приводов Siemens охватывает проектирование приводной системы в целом и обеспечивает работу как с простыми индивидуальными приводами, так и со сложными многоосевыми приложениями.

Дополнительную информацию по инструментуДополнительную информацию по инструменту проектирования SIZER для приводов Siemens можно найти в главе Технические средства.

ПО для ввода в эксплуатацию STARTER

С помощью ПО для ввода в эксплуатацию STARTER осуществляется управляемые через меню ввод в эксплуатацию, оптимизация и диагностика. Наряду с приводами SINAMICS, STARTER подходит и для устройств MICROMASTER 4 и преобразователей частоты для децентрализованной периферии SIMATIC ET 200S FC и SIMATIC ET 200pro FC. Для SINAMICS G120D от версии STARTER 4.1, SP1.

Дополнительную информацию по инструменту для ввода в эксплуатацию STARTER можно найти в главе Технические средства.

Система технических разработок Drive ES

Drive ES это система технических разработок, с помощью которой приводная техника Siemens лекго, быстро и рентабельно может быть интегрирована в систему автоматизации SIMATIC в том, что касается коммуникации, проектирования и хранения данных. Основой этого является интерфейс пользователя STEP 7 Manager. Для SINAMICS доступны различные программные пакеты: Drive ES Basic, Drive ES SIMATIC и Drive ES PCS 7.1.

Дополнительную информацию по системе технических разработок Drive ES можно найти в главе Технические средства.

 


Технические данные

Компактные преобразователи SINAMICS G120C

Приведенные ниже технические параметры действительны, если ясно не указано иначе, для всех перечисленных здесь компонентов компактных преобразователей SINAMICS G120C.

Технические данные

Механические данные

Вибрационная нагрузка

по EN 60068-2-6

 

  • транспортировка в транспортировочной упаковке

5 ... 9 Гц: постоянное отклонение 3,1 мм9 ... 200 Гц: постоянное ускорение = 9,81 м/с2 (1g)

  • работа

2 ... 9 Гц: постоянное отклонение 7 мм9 ... 200 Гц: постоянное ускорение = 19,62 м/с2 (2g)

Ударная нагрузка

по EN 60068-2-27

 

  • транспортировка в транспортировочной упаковке

147,15 м/с2 (15g)/11 мс3 ударные нагрузки в каждой оси и направлении

  • работа

147,15 м/с2 (15g)/11 мс3 ударные нагрузки в каждой оси и направлении

Степень защиты

IP20/ UL open type

Допустимая монтажная позиция

Горизонтальный монтаж на стену

Условия окружающей среды

Класс защиты

по EN 61800-5-1

Класс III (PELV1)

Защита от прикосновений

по EN 61800-5-1

Класс I (с цепью защиты)

Влажность воздуха, макс.

95 % при 40 °C (104 °F), образование конденсата и обледенение не допускаются

Температура окружающей среды

 

  • хранение 1)по EN 60068-2-1

-40 … +70 °C (-40 ... +158 °F)

  • транспортировка 1)по EN 60068-2-1

-40 … +70 °C (-40 ... +158 °F)

  • эксплуатация поEN 60068-2-2

0 … 40 °C (32 … 104 °F) без ухудшения характеристик

>40 … 60 °C (104 … 140 °F) см. Кривые ухудшения характеристик

Класс окружающей среды при эксплуатации Betrieb

 

  • химические вредные вещества

Класс 3C2 по EN 60721-3-3

  • органические/биологические вредные вещества

Класс 3B1 по EN 60721-3-3

  • степень загрязнения

2 по EN 61800

Стандарты/нормы

Соответствие стандартам

CE, cULus, ГОСТ Р, c-tick

Сертификация по повышеннойбезопасности

Функция: Safe Torque Off (STO)SIL 2 согласно IEC 61508, part 1 to 7 (1998 ... 2001)PL d согласно EN ISO 13849 part 1(2008)Категория 3 согласно EN 60204 (2007)PFHD: 5 х 10E-8 / T1: 10 лет

Маркировка CE, согласно

Директива по электромагнитной совместимости 2004/108/EGДиректива по низкому напряжению 2006/95/EG

Параметры ЭМС

по EN 61800-3

Производственный стандарт ЭМС EN 61800-3 относится не напрямую к преобразователю частоты, а кPDS (силовая система привода), которая, кроме преобразователя, включает в себя все соединения, атакже двигатель и кабели.

  • типоразмеры FSA до FSB со встроенным сетевым фильтром класса A

Категория C2 с экранированным кабелем двигателя длиной макс. 25 м

  • Frame size FSC with integrated line filter class A

Категория C3 с экранированным кабелем двигателя длиной макс. 25 м

1) В транспортной упаковке.

 

Управляющий модуль

Вариант USS/Modbus RTU

Вариант PROFIBUS DP

Вариант CANopen

 

6SL3210-1KE..-..B0

6SL3210-1KE..-..P0

6SL3210-1KE..-..C0

I/O-интерфейсы

Сечение сигнального кабеля

0,15 мм2 ... 1,5 мм2 (AWG28 ... AWG16)

Цифровые входы – Стандарт

6 входов с потенциальной развязкой

Оптическая изоляция;Свободный опорный потенциал (собственная группа потенциалов)Выбор логики NPN/PNP возможен через разводку

  • уровень переключения:0 → 1

11 В

  • уровень переключения:1 → 0

5 В

  • входной ток, макс..

15 мА

Вход повышенной безопасности

1 Safety Inputпри использовании стандартных цифровых входов (DI4+DI5)Safety-функция: Safe Torque OFF (STO)

Цифровые выходы

1 релейный переключающий контактDC 30 В, 0,5 A (омическая нагрузка)1 транзисторDC 30 В, 0,5 A (омическая нагрузка)

Аналоговые входы

1 аналоговый входДифф. входВозможность переключения через DIP-переключатель между напряжением (-10 ... +10 В) и током(0/4 ... 20 мА)10-бит разрешениеМожет использоваться как дополнительный цифровой входАналоговые входы защищены в диапазоне напряжений ± 30 В и располагают синфазным напряжением в диапазоне ± 15 В

  • порог переключения:0→  1

4 В

  • порог переключения: 1порог переключения: 1→  0

1.6 В

Аналоговые входы

1 аналоговый выходПотенциально связанный выходВозможность переключения через параметр между напряжением (0 ... 10 В) и током (0/4 ... 20 мА)Режим напряжения: 10 В, мин. нагрузка 10 kΩРежим тока: 20 мА, макс. нагрузка 500 ΩАналоговые выходы имеют защиту от короткого замыкания

PTC/KTY-интерфейс

1 вход датчика температуры двигателяПодключаемые датчики PTC, KTY и Thermo-Click,Точность ± 5 °C

Встроенный шинный интерфейс

Тип

RS485

PROFIBUS DP

CANopen

Протоколы

USSModbus RTU(возможность переключениячерез параметр)

PROFIdrive Profile V4.1

CANopen

Аппаратное обеспечение

Вставная клемма, изолированная,USS: макс. 187,5 кбодModbus RTU: 19,2 кбод,подключаемые терминаторы

9-полюсный SUB-D-штекер,изолированный, макс. 12 Мбит/с, возможность установки адреса Slave через DIP-переключатель

9-полюсная SUB-D-розетка,изолированная, макс. 1 Мбит/с

Инструментальные интерфейсы

Карты памяти

Как опция1 SINAMICS Micro Memory Card (MMC) или 1 SIMATIC Memory Card (SD-карта)

Устройства управления

Как опцияБазовая панель оператора BOP-2 или интеллектуальная панель оператора IOP

PC-интерфейс

USB

 

Управляющий модуль

Вариант USS/Modbus RTU

Вариант PROFIBUS DP

Вариант CANopen

 

6SL3210-1KE..-..B0

6SL3210-1KE..-..P0

6SL3210-1KE..-..C0

Метод управления/регулирования

U/f линейный/квадратичный/параметрируемый

✓ 

U/f с управлением попотокосцеплению (FCC)

✓ 

U/f ECO линейный/квадратичный

✓ 

Векторное управление, без датчика

✓ 

Векторное управление, с датчиком

Управление по моменту,без датчика

Управление по моменту,с датчиком

Программные функции

Установка заданного значения

✓ 

Постоянные частоты

16, parameterizable

JOG

✓ 

Цифровой потенциометр двигателя(MOP)

✓ 

Сглаживание по рампе

✓ 

Расширенный задатчик интенсивности(со сглаживанием по рампе Off3)

✓ 

Рампа торможения дляпозиционирования

Компенсация скольжения

✓ 

Соединение сигналов по технологииBICO

✓ 

Свободные функциональные блоки(FFB)для логических иарифметических операций

Переключаемые блоки данныхпривода (DDS)

Переключаемые командные блокиданных (CDS)

✓ (2)

Рестарт на лету (перезапуск находу)

✓ 

Автоматический перезапускпосле выпадения сети илирабочего отказа (AR)

✓ 

Технологический регулятор(внутренний ПИД)

✓ 

Счетчик энергопотребления

✓ 

Калькулятор энергосбережения

✓ 

Тепловая защита двигателя

✓ (I2t, sensor: PTC/KTY/Thermo-Click)

Тепловая защита преобразователя

✓ 

Идентификация двигателя

✓ 

Стояночный тормоз двигателя

✓ 

Auto-Ramping (Vdcmax регулятор)

✓ 

Кинетическая буферизация (Vdcmin регулятор)

✓ 

Функции торможения

 

  • торможение постояннымтоком

✓ 

  • смешанное торможение

✓ 

  • реостатное торможение со встроенным тормозным прерывателем

✓ 

 

Общие технические данные силовой электроники

Рабочее напряжение сети

3 AC 380 … 480 В +10 % -20 %

Требования к сетиНапряжение короткого замыкания сети uK

без ограничений

Входная частота

47 … 63 Гц

Выходная частота

 

  • тип управления U/f

0 … 650 Гц

  • тип управления Vector

0 … 240 Гц

Частота импульсов

4 кГц более высокие частоты импульсов до 16 кГц, см. Данные ухудшения характеристик

Коэффициент мощности λ

0.7 ... 0.85

Коэффициент мощности cos ϕ

≥0.95

Выходное напряжение, макс.

0 ... 95 % входного напряжения

Допустимая перегрузка

 

  • низкая перегрузка (LO)

150 % ток базовой нагрузки IL на 3 с, после 110 % тока базовой нагрузкиIL на 57 с с последующим 100 % IL на 240 с с циклом в 300 с

  • высокая перегрузка (HO)

200 % base load current IH for 3 s, followed by 150 % base load current IH на 57 с с последующим 100 % током базовой нагрузки IL for 240 s in a 300 s cycle time

Электромагнитная совместимость

Со встроенным сетевым фильтром категории C2/C3 согласно EN 61800-3

Охлаждение

Воздушное охлаждение через встроенный вентилятор

Высота места установки

До 1000 м над уровнем моря без снижения мощности,>1000 м см. Кривые ухудшения характеристик

Стандартный отключающий ток прикоротком замыкании SCCR (ShortCircuit Current Rating)1)

65 kA

Защитные функции

• пониженное напряжение• перенапряжение• перерегулирование/перегрузка• замыкание на землю• короткое замыкание• защита от опрокидывания• защита от блокировки двигателя• перегрев двигателя• перегрев преобразователя

1) Действительно для промышленного монтажа в электрошкаф по NEC Article 409/UL 508A.

 

Напряжение сети 3 AC 380 ... 480 В

Силовая электроника SINAMICS G120C

 

6SL3210-1KE11-8..0

6SL3210-1KE12-3..0

6SL3210-1KE13-2..0

6SL3210-1KE14-3..0

Выходной токпри 3 AC 400 В

 

 

 

 

 

  • ном. ток Irated1)

A

1.8

2.3

3.2

4.3

  • ток базовой нагрузки IL2)

A

1.7

2.2

3.1

4.1

  • ток базовой нагрузки IH3)

A

1.3

1.7

2.2

3.1

  • I max

A

2.6

3.4

4.4

6.2

Ном. мощность

 

 

 

 

 

  • на основе IL

кВт

0.55 (0.75)

0.75 (1.0)

1.1 (1.5)

1.5 (2.0)

  • на основе IH

кВт

0.37 (0.5)

0.55 (0.75)

0.75 (1.0)

1.1 (1.5)

Ном. частота импульсов

кГц

4

4

4

4

КПД η

 

0.97

0.97

0.97

0.97

Мощность потерьпри ном. токе

kW

0.04

0.05

0.05

0.07

Расход охлаждающего воздуха

м3/с

0.005 (0.18)

0.005 (0.18)

0.005 (0.18)

0.005 (0.18)

Уровень шума (1 м) L pA (1 м)

дБ

<52

<52

<52

<52

Ном. входной ток 4)

 

 

 

 

 

  • на базе IL

A

2.3

2.9

4.1

5.5

  • на базе IH

A

1.9

2.5

3.2

4.5

Длина кабеля к тормозному резистору, макс.

м

15 (49)

15 (49)

15 (49)

15 (49)

Подключение к сети

U1/L1, V1/L2, W1/L3

 

Вставные клеммы под винт

Вставные клеммы под винт

Вставные клеммы под винт

Вставные клеммы под винт

  • сечение вывода

мм2

1 … 2.5(16 ... 14 AWG)

1 … 2.5(16 ... 14 AWG)

1 … 2.5(16 ... 14 AWG)

1 … 2.5(16 ... 14 AWG)

Соединение двигателя

U2, V2, W2

 

Вставные клеммы под винт

Вставные клеммы под винт

Вставные клеммы под винт

Вставные клеммы под винт

  • сечение вывода

мм2

1 … 2.5(16 ... 14 AWG)

1 … 2.5(16 ... 14 AWG)

1 … 2.5(16 ... 14 AWG)

1 … 2.5(16 ... 14 AWG)

Соединение для тормозного резистораR1, R2

 

Вставные клеммы под винт

Вставные клеммы под винт

Вставные клеммы под винт

Вставные клеммы под винт

  • сечение вывода

мм2

1 … 2.5(16 ... 14 AWG)

1 … 2.5(16 ... 14 AWG)

1 … 2.5(16 ... 14 AWG)

1 … 2.5(16 ... 14 AWG)

PE-соединение

 

На корпусе винтом M4

На корпусе винтом M4

На корпусе винтом M4

На корпусе винтом M4

Длина кабеля двигателя, макс. 5)

 

 

 

 

 

  • экранированный

м

50 (164)

50 (164)

50 (164)

50 (164)

  • не экранированный

м

100 (328)

100 (328)

100 (328)

100 (328)

Размеры

 

 

 

 

 

  • ширина

мм

73 (2.87)

73 (2.87)

73 (2.87)

73 (2.87)

  • высота

мм

196 (7.72)

196 (7.72)

196 (7.72)

196 (7.72)

  • глубина

 

 

 

 

 

  • без устройства управления

мм

203 (7.99)

203 (7.99)

203 (7.99)

203 (7.99)

  • с устройством управления

мм

224 (8.82)

224 (8.82)

224 (8.82)

224 (8.82)

Типоразмер

 

FSA

FSA

FSA

FSA

Вес, около.

кг

1.7 (3.75)

1.7 (3.75)

1.7 (3.75)

1.7 (3.75)

1) Возможно увеличение ном. выходного тока I/N до 100 %, но без перегрузки.2) В основе тока базовой нагрузки I/L лежит нагрузочный цикл для низкой перегрузки (low overload LO).3) В основе тока базовой нагрузки I/H лежит нагрузочный цикл для высокой перегрузки (high overload HO).4) Ном. входные токи действуют при входном напряжении 3 AC 400 В и полном сопротивлении сети согласно uK = 1 % (без сетевого дросселя). Ном.входной ток на основе I/L указан на шильдике устройства. Входной ток в конкретном приложении зависит от нагрузки двигателя и полногосопротивления сети. Использование сетевого дросселя снижает входной ток.5) Макс. длина кабеля двигателя действительны при входном напряжении 3 AC 400 В и работе с частотой импульсов 4 кГц.Для соблюдения предельных значений по EN 61800-3 категория C2 разрешается макс. длина кабеля двигателя в 25 м (экранированный).

 

Напряжение сети 3 AC 380 ... 480 В

Силовая электроника SINAMICS G120C

 

6SL3210-1KE15-8..0

6SL3210-1KE17-5..0

6SL3210-1KE18-8..0

6SL3210-1KE21-3..0

Выходной токпри 3 AC 400 В

 

 

 

 

 

  • ном. токIrated1)

A

5.8

7.5

9.0

13.0

  • ток базовой нагрузки IL2)

A

5.6

7.3

8.8

12.5

  • ток базовой нагрузкиIH3)

A

4.1

5.6

7.3

8.8

  • I max

A

8.2

11.2

14.6

17.6

Ном. мощность

 

 

 

 

 

  • на основе IL

кВт

2.2 (3.0)

3.0 (4.0)

4.0 (5.0)

5.5 (7.5)

  • на основе IH

кВт

1.5 (2.0)

2.2 (3.0)

3.0 (4.0)

4.0 (5.0)

Ном. частота импульсов

кГц

4

4

4

4

КПД η

 

0.97

0.97

0.97

0.97

Мощность потерьпри ном. токе

кВт

0.09

0.14

0.15

0.18

Расход охлаждающего воздуха

м3/с

0.005 (0.18)

0.005 (0.18)

0.005 (0.18)

0.009 (0.32)

Уровень шума LpA (1 м)

дБ

<52

<52

<52

<63

Ном. входной ток 4)

 

 

 

 

 

  • на базе IL

A

7.4

9.5

11.4

16.5

  • на базе IH

A

6.0

8.2

10.6

12.8

Длина кабеля к тормозному резистору, макс.

м

15 (49)

15 (49)

15 (49)

15 (49)

Подключение к сетиU1/L1, V1/L2, W1/L3

 

Вставные клеммы под винт

Вставные клеммы под винт

Вставные клеммы под винт

Вставные клеммы под винт

  • сечение вывода

мм2

1 … 2.5(16 ... 14 AWG)

1 … 2.5(16 ... 14 AWG)

1 … 2.5(16 ... 14 AWG)

4 … 6(12 ... 10 AWG)

Соединение двигателяU2, V2, W2

 

Вставные клеммы под винт

Вставные клеммы под винт

Вставные клеммы под винт

Вставные клеммы под винт

  • сечение вывода

мм2

1 … 2.5(16 ... 14 AWG)

1 … 2.5(16 ... 14 AWG)

1 … 2.5(16 ... 14 AWG)

4 … 6(12 ... 10 AWG)

Соединение для тормозного резистораR1, R2

 

Вставные клеммы под винт

Вставные клеммы под винт

Вставные клеммы под винт

Вставные клеммы под винт

  • сечение вывода

мм2

1 … 2.5(16 ... 14 AWG)

1 … 2.5(16 ... 14 AWG)

1 … 2.5(16 ... 14 AWG)

4 … 6(12 ... 10 AWG)

PE-соединение

 

На корпусе винтом M4

На корпусе винтом M4

На корпусе винтом M4

На корпусе винтом M4

Длина кабеля двигателя, макс. 5)

 

 

 

 

 

  • экранированный

м

50 (164)

50 (164)

50 (164)

50 (164)

  • не экранированный

м

100 (328)

100 (328)

100 (328)

100 (328)

Размеры

 

 

 

 

 

  • ширина

мм

73 (2.87)

73 (2.87)

73 (2.87)

100 (3.94)

  • высота

мм

196 (7.72)

196 (7.72)

196 (7.72)

196 (7.72)

  • глубина

 

 

 

 

 

        -    без устройства управления

мм

203 (7.99)

203 (7.99)

203 (7.99)

203 (7.99)

  • без устройства управления

мм

224 (8.82)

224 (8.82)

224 (8.82)

224 (8.82)

Типоразмер

 

FSA

FSA

FSA

FSB

Вес, около

кг

1.7 (3.75)

1.7 (3.75)

1.7 (3.75)

2.3 (5)

1) Возможно увеличение ном. выходного тока I/N до 100 %, но без перегрузки.

2) В основе тока базовой нагрузки I/L лежит нагрузочный цикл для низкой перегрузки (low overload LO).

3) В основе тока базовой нагрузки I/H лежит нагрузочный цикл для высокой перегрузки (high overload HO).

4) Ном. входные токи действуют при входном напряжении 3 AC 400 В и полном сопротивлении сети согласно uK = 1 % (без сетевого дросселя). Ном.входной ток на основе I/L указан на шильдике устройства. Входной ток в конкретном приложении зависит от нагрузки двигателя и полногосопротивления сети. Использование сетевого дросселя снижает входной ток.

5) Макс. длина кабеля двигателя действительны при входном напряжении 3 AC 400 В и работе с частотой импульсов 4 кГц.Для соблюдения предельных значений по EN 61800-3 категория C2 разрешается макс. длина кабеля двигателя в 25 м (экранированный).

 

Напряжение сети 3 AC 380 ... 480 В

Силовая электроника SINAMICS G120C

 

6SL3210-1KE21-7..0

6SL3210-1KE22-6..0

6SL3210-1KE23-2..0

6SL3210-1KE23-8..0

Выходной токпри 3 AC 400 В

 

 

 

 

 

  • ном. ток Irated1)

A

17.0

26.0

32.0

38.0

  • ток базовой нагрузки IL2)

A

16.5

25.0

31.0

37.0

  • ток базовой нагрузки IH3)

A

12.5

16.5

25.0

31.0

  • I max

A

25.0

33.0

50.0

62.0

Ном. мощность

 

 

 

 

 

  • на основе IL

кВт

7.5 (10)

11.0 (15)

15.0 (20)

18.5 (25)

  • на основе IH

кВт

5.5 (7.5)

7.5 (10)

11.0 (15)

15.0 (20)

Ном. частота импульсов

кГц

4

4

4

4

КПД η

 

0.97

0.97

0.97

0.97

Мощность потерьпри ном. токе

кВт

0.24

0.35

0.43

0.50

Расход охлаждающего воздуха

м3/с

0.009 (0.32)

0.018 (0.64)

0.018 (0.64)

0.018 (0.64)

Уровень шума L pA (1 m)

дБ

<63

<66

<66

<66

Ном. входной ток 4)

 

 

 

 

 

  • на базе IL

A

21.5

33.0

40.6

48.2

  • на базе IH

A

18.2

24.1

36.4

45.2

Длина кабеля к тормозному резистору, макс.

м

15 (49)

15 (49)

15 (49)

15 (49)

Подключение к сетиU1/L1, V1/L2, W1/L3

 

Вставные клеммы подвинт

Вставные клеммы подвинт

Вставные клеммы подвинт

Вставные клеммы подвинт

  • сечение вывода

мм2

4 … 6(12 ... 10 AWG)

6 … 16(10 ... 5 AWG)

6 … 16(10 ... 5 AWG)

6 … 16(10 ... 5 AWG)

Соединение двигателяU2, V2, W2

 

Вставные клеммы подвинт

Вставные клеммы подвинт

Вставные клеммы подвинт

Вставные клеммы подвинт

  • сечение вывода

мм2

4 … 6(12 ... 10 AWG)

6 … 16(10 ... 5 AWG)

6 … 16(10 ... 5 AWG)

6 … 16(10 ... 5 AWG)

Соединение для тормозного резистораR1, R2

 

Вставные клеммы подвинт

Вставные клеммы подвинт

Вставные клеммы подвинт

Вставные клеммы подвинт

  • сечение вывода

мм2

4 … 6(12 ... 10 AWG)

6 … 16(10 ... 5 AWG)

6 … 16(10 ... 5 AWG)

6 … 16(10 ... 5 AWG)

PE-соединение

 

На корпусе винтом M4

На корпусе винтом M4

На корпусе винтом M4

На корпусе винтом M4

Длина кабеля двигателя, макс.5)

 

 

 

 

 

  • экранированный

м 

50 (164)

50 (164)

50 (164)

50 (164)

  • не экранированный

м

100 (328)

100 (328)

100 (328)

100 (328)

Размеры

 

 

 

 

 

  • ширина

мм

100 (3.94)

140 (5.51)

140 (5.51)

140 (5.51)

  • высота

мм

196 (7.72)

295 (11.61)

295 (11.61)

295 (11.61)

  • глубина

 

 

 

 

 

  • без устройства управления

мм

203 (7.99)

203 (7.99)

203 (7.99)

203 (7.99)

  • с устройством управления

мм

224 (8.82)

224 (8.82)

224 (8.82)

224 (8.82)

Типоразмер

 

FSB

FSC

FSC

FSC

Вес, около

кг

2.3 (5)

4.5 (10)

4.5 (10)

4.5 (10)

1) Возможно увеличение ном. выходного тока I/N до 100 %, но без перегрузки.2) В основе тока базовой нагрузки I/L лежит нагрузочный цикл для низкой перегрузки (low overload LO).3) В основе тока базовой нагрузки I/H лежит нагрузочный цикл для высокой перегрузки (high overload HO).4) Ном. входные токи действуют при входном напряжении 3 AC 400 В и полном сопротивлении сети согласно uK = 1 % (без сетевого дросселя). Ном.входной ток на основе I/L указан на шильдике устройства. Входной ток в конкретном приложении зависит от нагрузки двигателя и полногосопротивления сети. Использование сетевого дросселя снижает входной ток.5) Макс. длина кабеля двигателя действительны при входном напряжении 3 AC 400 В и работе с частотой импульсов 4 кГц.Для соблюдения предельных значений по EN 61800-3 категория C2 разрешается макс. длина кабеля двигателя в 25 м (экранированный).

 


Характеристика

Компактные преобразователи SINAMICS G120C
Данные ухудшения характеристик

Частота импульсов

Ном. мощностьна базе низкой перегрузки (LO)

Ном. выходной ток в A

при частоте импульсов в

кВт

л.с.

4 кГц

6 кГц

8 кГц

10 кГц

12 кГц

14 кГц

16 кГц

0.55 1)

0.75

1.7

1.4

1.2

1.0

0.9

0.8

0.7

0.75 1)

1.0

2.2

1.9

1.5

1.3

1.1

1.0

0.9

1.1 1)

1.5

3.1

2.6

2.2

1.9

1.6

1.4

1.2

1.5 1)

2.0

4.1

3.5

2.9

2.5

2.1

1.8

1.6

2.2 1)

3.0

5.6

4.8

3.9

3.4

2.8

2.5

2.2

3.0 1)

4.0

7.3

6.2

5.1

4.4

3.7

3.3

2.9

4.0 1)

5.0

8.8

7.5

6.2

5.3

4.4

4.0

3.5

5.5

7.5

12.5

10.6

8.8

7.5

6.3

5.6

5.0

7.5

10

16.5

14.0

11.6

9.9

8.3

7.4

6.6

11.0

15

25.0

21.3

17.5

15.0

12.5

11.3

10.0

15.0

20

31.0

26.4

21.7

18.6

15.5

14.0

12.4

18.5

25

37.0

31.5

25.9

22.2

18.5

16.7

14.8

1) The permissible motor cable length depends on the cable type and the pulse frequency.

Температура окружающей среды

Высокая перегрузка (High overload HO) и низкая перегрузка (low overload LO)

Высота места установки

Доп. выходной ток в зависимости от высоты места установки

Доп. входное напряжение в зависимости от высоты места установки

Напряжение сети

Доп. выходной ток в зависимости от напряжения сети

Доп. ном. мощность в зависимости от напряжения сети

 


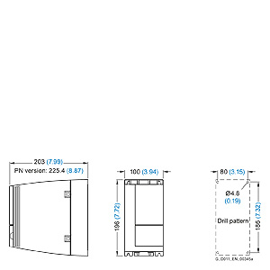
Чертеж

Компактные преобразователи SINAMICS G120C

SINAMICS G120C, frame size FSA

Крепеж 3 болтами M4, 3 гайками M4, 3 шайбами M4.

Необходимое свободное пространство для вентиляции сверху: 80 мм (3,15 дюймов).Необходимое свободное пространство для вентиляции снизу: 100 мм (3,94 дюйма).Необходимое свободное пространство для вентиляции сбоку: 0 мм (0 дюймов).

Со вставленной IOP монтажная глубина увеличивается на 21 мм (0,83 дюйма).Со вставленной BOP-2 монтажная глубина увеличивается на 11 мм (0,43 дюйма).

Все размеры в мм (значения в скобах в дюймах).

SINAMICS G120C, frame size FSB

Крепеж 4 болтами M4, 4 гайками M4, 4 шайбами M4.

Необходимое свободное пространство для вентиляции сверху: 80 мм (3,15 дюймов). Необходимое свободное пространство для вентиляции снизу: 100 мм (3,94 дюйма). Необходимое свободное пространство для вентиляции сбоку: 0 мм (0 дюймов).

Со вставленной IOP монтажная глубина увеличивается на 21 мм (0,83 дюйма). Со вставленной BOP-2 монтажная глубина увеличивается на 11 мм (0,43 дюйма).

Все размеры в мм (значения в скобах в дюймах).

SINAMICS G120C, frame size FSC

Крепеж 4 болтами M4, 4 гайками M4, 4 шайбами M4.

Необходимое свободное пространство для вентиляции сверху: 80 мм (3,15 дюймов).Необходимое свободное пространство для вентиляции снизу: 100 мм (3,94 дюйма).Необходимое свободное пространство для вентиляции сбоку: 0 мм (0 дюймов).

Со вставленной IOP монтажная глубина увеличивается на 21 мм (0,83 дюйма).Со вставленной BOP-2 монтажная глубина увеличивается на 11 мм (0,43 дюйма).

Все размеры в мм (значения в скобах в дюймах).

 

 


Дальнейшая информация

Компактные преобразователи SINAMICS G120C

Подробную информацию по SINAMICS G120C, актуальную техническую документацию (каталоги, габаритные чертежи,сертификаты, справочники и руководства по эксплуатации) можно найти в Интернете по адресу:

http://www.siemens.com/sinamics-g120c

Информацию по SINAMICS G120C можно найти на DVD-ROM CA 01 в DT-конфигураторе.

 


Заказные данные

Цена на сайте указана розничная в ЕВРО без учета НДС.Для уточнения цены и размера предоставляемой скидки - звоните или присылайте заявки

Заказной номерPGОписание продуктаЦена
6SL3210-1KE11-8AB1340SINAMICS G120C RATED POWER 0,55KW WITH 150% OVERLOAD FOR 3 SEC 3AC380-480V +10/-20% 47-63HZ INTEGRATED FILTER CLASS A I/O-INTERFACE: 6DI, 2DO,1AI,1AO SAFE TORQUE OFF INTEGRATED FIELDBUS: USS/ MODBUS RTU PROTECTION: IP20/ UL OPEN TYPE SIZE: FSA 196X73X203(HXWXD) EXTERNAL 24V 469.34
6SL3210-1KE11-8AC1340SINAMICS G120C RATED POWER 0,55KW WITH 150% OVERLOAD FOR 3 SEC 3AC380-480V +10/-20% 47-63HZ INTEGRATED FILTER CLASS A I/O-INTERFACE: 6DI, 2DO,1AI,1AO SAFE TORQUE OFF INTEGRATED FIELDBUS: CANOPEN PROTECTION: IP20/ UL OPEN TYPE SIZE: FSA 196X73X203(HXWXD) EXTERNAL 24V 545.75
6SL3210-1KE11-8AF1340SINAMICS G120C RATED POWER 0,55KW WITH 150% OVERLOAD FOR 3 SEC 3AC380-480V +10/-20% 47-63HZ INTEGRATED FILTER CLASS A I/O-INTERFACE: 6DI, 2DO,1AI,1AO SAFE TORQUE OFF INTEGRATED FIELDBUS: PROFINET-PN PROTECTION: IP20/ UL OPEN TYPE SIZE: FSA 196X73X203(HXWXD) EXTERNAL 24V 523.93
6SL3210-1KE11-8AP1340SINAMICS G120C RATED POWER 0,55KW WITH 150% OVERLOAD FOR 3 SEC 3AC380-480V +10/-20% 47-63HZ INTEGRATED FILTER CLASS A I/O-INTERFACE: 6DI, 2DO,1AI,1AO SAFE TORQUE OFF INTEGRATED FIELDBUS: PROFIBUS-DP PROTECTION: IP20/ UL OPEN TYPE SIZE: FSA 196X73X203(HXWXD) EXTERNAL 24V 523.93
6SL3210-1KE11-8UB1340SINAMICS G120C RATED POWER 0,55KW WITH 150% OVERLOAD FOR 3 SEC 3AC380-480V +10/-10% 47-63HZ UNFILTERED I/O-INTERFACE: 6DI, 2DO,1AI,1AO SAFE TORQUE OFF INTEGRATED FIELDBUS: USS/ MODBUS RTU PROTECTION: IP20/ UL OPEN TYPE SIZE: FSA 196X73X203(HXWXD) EXTERNAL 24V 420.23
6SL3210-1KE11-8UC1340SINAMICS G120C RATED POWER 0,55KW WITH 150% OVERLOAD FOR 3 SEC 3AC380-480V +10/-20% 47-63HZ UNFILTERED I/O-INTERFACE: 6DI, 2DO,1AI,1AO SAFE TORQUE OFF INTEGRATED FIELDBUS: CANOPEN PROTECTION: IP20/ UL OPEN TYPE SIZE: FSA 196X73X203(HXWXD) EXTERNAL 24V 496.64
6SL3210-1KE11-8UF1340SINAMICS G120C RATED POWER 0,55KW WITH 150% OVERLOAD FOR 3 SEC 3AC380-480V +10/-20% 47-63HZ UNFILTERED I/O-INTERFACE: 6DI, 2DO,1AI,1AO SAFE TORQUE OFF INTEGRATED FIELDBUS: PROFINET-PN PROTECTION: IP20/ UL OPEN TYPE SIZE: FSA 196X73X203(HXWXD) EXTERNAL 24V 474.80
6SL3210-1KE11-8UP1340SINAMICS G120C RATED POWER 0,55KW WITH 150% OVERLOAD FOR 3 SEC 3AC380-480V +10/-20% 47-63HZ UNFILTERED I/O-INTERFACE: 6DI, 2DO,1AI,1AO SAFE TORQUE OFF INTEGRATED FIELDBUS: PROFIBUS-DP PROTECTION: IP20/ UL OPEN TYPE SIZE: FSA 196X73X203(HXWXD) EXTERNAL 24V 474.80
6SL3210-1KE12-3AB1340SINAMICS G120C RATED POWER 0,75KW WITH 150% OVERLOAD FOR 3 SEC 3AC380-480V +10/-20% 47-63HZ INTEGRATED FILTER CLASS A I/O-INTERFACE: 6DI, 2DO,1AI,1AO SAFE TORQUE OFF INTEGRATED FIELDBUS: USS/ MODBUS RTU PROTECTION: IP20/ UL OPEN TYPE SIZE: FSA 196X73X203(HXWXD) EXTERNAL 24V 491.18
6SL3210-1KE12-3AC1340SINAMICS G120C RATED POWER 0,75KW WITH 150% OVERLOAD FOR 3 SEC 3AC380-480V +10/-20% 47-63HZ INTEGRATED FILTER CLASS A I/O-INTERFACE: 6DI, 2DO,1AI,1AO SAFE TORQUE OFF INTEGRATED FIELDBUS: CANOPEN PROTECTION: IP20/ UL OPEN TYPE SIZE: FSA 196X73X203(HXWXD) EXTERNAL 24V 567.58
6SL3210-1KE12-3AF1340SINAMICS G120C RATED POWER 0,75KW WITH 150% OVERLOAD FOR 3 SEC 3AC380-480V +10/-20% 47-63HZ INTEGRATED FILTER CLASS A I/O-INTERFACE: 6DI, 2DO,1AI,1AO SAFE TORQUE OFF INTEGRATED FIELDBUS: PROFINET-PN PROTECTION: IP20/ UL OPEN TYPE SIZE: FSA 196X73X203(HXWXD) EXTERNAL 24V 545.75
6SL3210-1KE12-3AP1340SINAMICS G120C RATED POWER 0,75KW WITH 150% OVERLOAD FOR 3 SEC 3AC380-480V +10/-20% 47-63HZ INTEGRATED FILTER CLASS A I/O-INTERFACE: 6DI, 2DO,1AI,1AO SAFE TORQUE OFF INTEGRATED FIELDBUS: PROFIBUS-DP PROTECTION: IP20/ UL OPEN TYPE SIZE: FSA 196X73X203(HXWXD) EXTERNAL 24V 545.75
6SL3210-1KE12-3UB1340SINAMICS G120C RATED POWER 0,75KW WITH 150% OVERLOAD FOR 3 SEC 3AC380-480V +10/-20% 47-63HZ UNFILTERED I/O-INTERFACE: 6DI, 2DO,1AI,1AO SAFE TORQUE OFF INTEGRATED FIELDBUS: USS/ MODBUS RTU PROTECTION: IP20/ UL OPEN TYPE SIZE: FSA 196X73X203(HXWXD) EXTERNAL 24V 442.06
6SL3210-1KE12-3UC1340SINAMICS G120C RATED POWER 0,75KW WITH 150% OVERLOAD FOR 3 SEC 3AC380-480V +10/-20% 47-63HZ UNFILTERED I/O-INTERFACE: 6DI, 2DO,1AI,1AO SAFE TORQUE OFF INTEGRATED FIELDBUS: CANOPEN PROTECTION: IP20/ UL OPEN TYPE SIZE: FSA 196X73X203(HXWXD) EXTERNAL 24V 518.47
6SL3210-1KE12-3UF1340SINAMICS G120C RATED POWER 0,75KW WITH 150% OVERLOAD FOR 3 SEC 3AC380-480V +10/-20% 47-63HZ UNFILTERED I/O-INTERFACE: 6DI, 2DO,1AI,1AO SAFE TORQUE OFF INTEGRATED FIELDBUS: PROFINET-PN PROTECTION: IP20/ UL OPEN TYPE SIZE: FSA 196X73X203(HXWXD) EXTERNAL 24V 496.64
6SL3210-1KE12-3UP1340SINAMICS G120C RATED POWER 0,75KW WITH 150% OVERLOAD FOR 3 SEC 3AC380-480V +10/-20% 47-63HZ UNFILTERED I/O-INTERFACE: 6DI, 2DO,1AI,1AO SAFE TORQUE OFF INTEGRATED FIELDBUS: PROFIBUS-DP PROTECTION: IP20/ UL OPEN TYPE SIZE: FSA 196X73X203(HXWXD) EXTERNAL 24V 496.64
6SL3210-1KE13-2AB1340SINAMICS G120C RATED POWER 1,1KW WITH 150% OVERLOAD FOR 3 SEC 3AC380-480V +10/-20% 47-63HZ INTEGRATED FILTER CLASS A I/O-INTERFACE: 6DI, 2DO,1AI,1AO SAFE TORQUE OFF INTEGRATED FIELDBUS: USS/ MODBUS RTU PROTECTION: IP20/ UL OPEN TYPE SIZE: FSA 196X73X203(HXWXD) EXTERNAL 24V 513.01
6SL3210-1KE13-2AC1340SINAMICS G120C RATED POWER 1,1KW WITH 150% OVERLOAD FOR 3 SEC 3AC380-480V +10/-20% 47-63HZ INTEGRATED FILTER CLASS A I/O-INTERFACE: 6DI, 2DO,1AI,1AO SAFE TORQUE OFF INTEGRATED FIELDBUS: CANOPEN PROTECTION: IP20/ UL OPEN TYPE SIZE: FSA 196X73X203(HXWXD) EXTERNAL 24V 589.41
6SL3210-1KE13-2AF1340SINAMICS G120C RATED POWER 1,1KW WITH 150% OVERLOAD FOR 3 SEC 3AC380-480V +10/-20% 47-63HZ INTEGRATED FILTER CLASS A I/O-INTERFACE: 6DI, 2DO,1AI,1AO SAFE TORQUE OFF INTEGRATED FIELDBUS: PROFINET-PN PROTECTION: IP20/ UL OPEN TYPE SIZE: FSA 196X73X203(HXWXD) EXTERNAL 24V 567.58
6SL3210-1KE13-2AP1340SINAMICS G120C RATED POWER 1,1KW WITH 150% OVERLOAD FOR 3 SEC 3AC380-480V +10/-20% 47-63HZ INTEGRATED FILTER CLASS A I/O-INTERFACE: 6DI, 2DO,1AI,1AO SAFE TORQUE OFF INTEGRATED FIELDBUS: PROFIBUS-DP PROTECTION: IP20/ UL OPEN TYPE SIZE: FSA 196X73X203(HXWXD) EXTERNAL 24V 567.58
6SL3210-1KE13-2UB1340SINAMICS G120C RATED POWER 1,1KW WITH 150% OVERLOAD FOR 3 SEC 3AC380-480V +10/-20% 47-63HZ UNFILTERED I/O-INTERFACE: 6DI, 2DO,1AI,1AO SAFE TORQUE OFF INTEGRATED FIELDBUS: USS/ MODBUS RTU PROTECTION: IP20/ UL OPEN TYPE SIZE: FSA 196X73X203(HXWXD) EXTERNAL 24V 458.43
6SL3210-1KE13-2UC1340SINAMICS G120C RATED POWER 1,1KW WITH 150% OVERLOAD FOR 3 SEC 3AC380-480V +10/-20% 47-63HZ UNFILTERED I/O-INTERFACE: 6DI, 2DO,1AI,1AO SAFE TORQUE OFF INTEGRATED FIELDBUS: CANOPEN PROTECTION: IP20/ UL OPEN TYPE SIZE: FSA 196X73X203(HXWXD) EXTERNAL 24V 534.84
6SL3210-1KE13-2UF1340SINAMICS G120C RATED POWER 1,1KW WITH 150% OVERLOAD FOR 3 SEC 3AC380-480V +10/-20% 47-63HZ UNFILTERED I/O-INTERFACE: 6DI, 2DO,1AI,1AO SAFE TORQUE OFF INTEGRATED FIELDBUS: PROFINET-PN PROTECTION: IP20/ UL OPEN TYPE SIZE: FSA 196X73X203(HXWXD) EXTERNAL 24V 513.01
6SL3210-1KE13-2UP1340SINAMICS G120C RATED POWER 1,1KW WITH 150% OVERLOAD FOR 3 SEC 3AC380-480V +10/-20% 47-63HZ UNFILTERED I/O-INTERFACE: 6DI, 2DO,1AI,1AO SAFE TORQUE OFF INTEGRATED FIELDBUS: PROFIBUS-DP PROTECTION: IP20/ UL OPEN TYPE SIZE: FSA 196X73X203(HXWXD) EXTERNAL 24V 513.01
6SL3210-1KE14-3AB1340SINAMICS G120C RATED POWER 1,5KW WITH 150% OVERLOAD FOR 3 SEC 3AC380-480V +10/-20% 47-63HZ INTEGRATED FILTER CLASS A I/O-INTERFACE: 6DI, 2DO,1AI,1AO SAFE TORQUE OFF INTEGRATED FIELDBUS: USS/ MODBUS RTU PROTECTION: IP20/ UL OPEN TYPE SIZE: FSA 196X73X203(HXWXD) EXTERNAL 24V 562.12
6SL3210-1KE14-3AC1340SINAMICS G120C RATED POWER 1,5KW WITH 150% OVERLOAD FOR 3 SEC 3AC380-480V +10/-20% 47-63HZ INTEGRATED FILTER CLASS A I/O-INTERFACE: 6DI, 2DO,1AI,1AO SAFE TORQUE OFF INTEGRATED FIELDBUS: CANOPEN PROTECTION: IP20/ UL OPEN TYPE SIZE: FSA 196X73X203(HXWXD) EXTERNAL 24V 638.53
6SL3210-1KE14-3AF1340SINAMICS G120C RATED POWER 1,5KW WITH 150% OVERLOAD FOR 3 SEC 3AC380-480V +10/-20% 47-63HZ INTEGRATED FILTER CLASS A I/O-INTERFACE: 6DI, 2DO,1AI,1AO SAFE TORQUE OFF INTEGRATED FIELDBUS: PROFINET-PN PROTECTION: IP20/ UL OPEN TYPE SIZE: FSA 196X73X203(HXWXD) EXTERNAL 24V 616.71
6SL3210-1KE14-3AP1340SINAMICS G120C RATED POWER 1,5KW WITH 150% OVERLOAD FOR 3 SEC 3AC380-480V +10/-20% 47-63HZ INTEGRATED FILTER CLASS A I/O-INTERFACE: 6DI, 2DO,1AI,1AO SAFE TORQUE OFF INTEGRATED FIELDBUS: PROFIBUS-DP PROTECTION: IP20/ UL OPEN TYPE SIZE: FSA 196X73X203(HXWXD) EXTERNAL 24V 616.71
6SL3210-1KE14-3UB1340SINAMICS G120C RATED POWER 1,5KW WITH 150% OVERLOAD FOR 3 SEC 3AC380-480V +10/-20% 47-63HZ UNFILTERED I/O-INTERFACE: 6DI, 2DO,1AI,1AO SAFE TORQUE OFF INTEGRATED FIELDBUS: USS/ MODBUS RTU PROTECTION: IP20/ UL OPEN TYPE SIZE: FSA 196X73X203(HXWXD) EXTERNAL 24V 496.64
6SL3210-1KE14-3UC1340SINAMICS G120C RATED POWER 1,5KW WITH 150% OVERLOAD FOR 3 SEC 3AC380-480V +10/-20% 47-63HZ UNFILTERED I/O-INTERFACE: 6DI, 2DO,1AI,1AO SAFE TORQUE OFF INTEGRATED FIELDBUS: CANOPEN PROTECTION: IP20/ UL OPEN TYPE SIZE: FSA 196X73X203(HXWXD) EXTERNAL 24V 573.04
6SL3210-1KE14-3UF1340SINAMICS G120C RATED POWER 1,5KW WITH 150% OVERLOAD FOR 3 SEC 3AC380-480V +10/-20% 47-63HZ UNFILTERED I/O-INTERFACE: 6DI, 2DO,1AI,1AO SAFE TORQUE OFF INTEGRATED FIELDBUS: PROFINET-PN PROTECTION: IP20/ UL OPEN TYPE SIZE: FSA 196X73X203(HXWXD) EXTERNAL 24V 551.21
6SL3210-1KE14-3UP1340SINAMICS G120C RATED POWER 1,5KW WITH 150% OVERLOAD FOR 3 SEC 3AC380-480V +10/-20% 47-63HZ UNFILTERED I/O-INTERFACE: 6DI, 2DO,1AI,1AO SAFE TORQUE OFF INTEGRATED FIELDBUS: PROFIBUS-DP PROTECTION: IP20/ UL OPEN TYPE SIZE: FSA 196X73X203(HXWXD) EXTERNAL 24V 551.21
6SL3210-1KE15-8AB1340SINAMICS G120C RATED POWER 2,2KW WITH 150% OVERLOAD FOR 3 SEC 3AC380-480V +10/-20% 47-63HZ INTEGRATED FILTER CLASS A I/O-INTERFACE: 6DI, 2DO,1AI,1AO SAFE TORQUE OFF INTEGRATED FIELDBUS: USS/ MODBUS RTU PROTECTION: IP20/ UL OPEN TYPE SIZE: FSA 196X73X203(HXWXD) EXTERNAL 24V 622.16
6SL3210-1KE15-8AC1340SINAMICS G120C RATED POWER 2,2KW WITH 150% OVERLOAD FOR 3 SEC 3AC380-480V +10/-20% 47-63HZ INTEGRATED FILTER CLASS A I/O-INTERFACE: 6DI, 2DO,1AI,1AO SAFE TORQUE OFF INTEGRATED FIELDBUS: CANOPEN PROTECTION: IP20/ UL OPEN TYPE SIZE: FSA 196X73X203(HXWXD) EXTERNAL 24V 698.56
6SL3210-1KE15-8AF1340SINAMICS G120C RATED POWER 2,2KW WITH 150% OVERLOAD FOR 3 SEC 3AC380-480V +10/-20% 47-63HZ INTEGRATED FILTER CLASS A I/O-INTERFACE: 6DI, 2DO,1AI,1AO SAFE TORQUE OFF INTEGRATED FIELDBUS: PROFINET-PN PROTECTION: IP20/ UL OPEN TYPE SIZE: FSA 196X73X203(HXWXD) EXTERNAL 24V 676.73
6SL3210-1KE15-8AP1340SINAMICS G120C RATED POWER 2,2KW WITH 150% OVERLOAD FOR 3 SEC 3AC380-480V +10/-20% 47-63HZ INTEGRATED FILTER CLASS A I/O-INTERFACE: 6DI, 2DO,1AI,1AO SAFE TORQUE OFF INTEGRATED FIELDBUS: PROFIBUS-DP PROTECTION: IP20/ UL OPEN TYPE SIZE: FSA 196X73X203(HXWXD) EXTERNAL 24V 676.73
6SL3210-1KE15-8UB1340SINAMICS G120C RATED POWER 2,2KW WITH 150% OVERLOAD FOR 3 SEC 3AC380-480V +10/-20% 47-63HZ UNFILTERED I/O-INTERFACE: 6DI, 2DO,1AI,1AO SAFE TORQUE OFF INTEGRATED FIELDBUS: USS/ MODBUS RTU PROTECTION: IP20/ UL OPEN TYPE SIZE: FSA 196X73X203(HXWXD) EXTERNAL 24V 551.21
6SL3210-1KE15-8UC1340SINAMICS G120C RATED POWER 2,2KW WITH 150% OVERLOAD FOR 3 SEC 3AC380-480V +10/-20% 47-63HZ UNFILTERED I/O-INTERFACE: 6DI, 2DO,1AI,1AO SAFE TORQUE OFF INTEGRATED FIELDBUS: CANOPEN PROTECTION: IP20/ UL OPEN TYPE SIZE: FSA 196X73X203(HXWXD) EXTERNAL 24V 627.62
6SL3210-1KE15-8UF1340SINAMICS G120C RATED POWER 2,2KW WITH 150% OVERLOAD FOR 3 SEC 3AC380-480V +10/-20% 47-63HZ UNFILTERED I/O-INTERFACE: 6DI, 2DO,1AI,1AO SAFE TORQUE OFF INTEGRATED FIELDBUS: PROFINET-PN PROTECTION: IP20/ UL OPEN TYPE SIZE: FSA 196X73X203(HXWXD) EXTERNAL 24V 605.79
6SL3210-1KE15-8UP1340SINAMICS G120C RATED POWER 2,2KW WITH 150% OVERLOAD FOR 3 SEC 3AC380-480V +10/-20% 47-63HZ UNFILTERED I/O-INTERFACE: 6DI, 2DO,1AI,1AO SAFE TORQUE OFF INTEGRATED FIELDBUS: PROFIBUS-DP PROTECTION: IP20/ UL OPEN TYPE SIZE: FSA 196X73X203(HXWXD) EXTERNAL 24V 605.79
6SL3210-1KE17-5AB1340SINAMICS G120C RATED POWER 3,0KW WITH 150% OVERLOAD FOR 3 SEC 3AC380-480V +10/-20% 47-63HZ INTEGRATED FILTER CLASS A I/O-INTERFACE: 6DI, 2DO,1AI,1AO SAFE TORQUE OFF INTEGRATED FIELDBUS: USS/ MODBUS RTU PROTECTION: IP20/ UL OPEN TYPE SIZE: FSA 196X73X203(HXWXD) EXTERNAL 24V 736.77
6SL3210-1KE17-5AC1340SINAMICS G120C RATED POWER 3,0KW WITH 150% OVERLOAD FOR 3 SEC 3AC380-480V +10/-20% 47-63HZ INTEGRATED FILTER CLASS A I/O-INTERFACE: 6DI, 2DO,1AI,1AO SAFE TORQUE OFF INTEGRATED FIELDBUS: CANOPEN PROTECTION: IP20/ UL OPEN TYPE SIZE: FSA 196X73X203(HXWXD) EXTERNAL 24V 813.17
6SL3210-1KE17-5AF1340SINAMICS G120C RATED POWER 3,0KW WITH 150% OVERLOAD FOR 3 SEC 3AC380-480V +10/-20% 47-63HZ INTEGRATED FILTER CLASS A I/O-INTERFACE: 6DI, 2DO,1AI,1AO SAFE TORQUE OFF INTEGRATED FIELDBUS: PROFINET-PN PROTECTION: IP20/ UL OPEN TYPE SIZE: FSA 196X73X203(HXWXD) EXTERNAL 24V 791.34
6SL3210-1KE17-5AP1340SINAMICS G120C RATED POWER 3,0KW WITH 150% OVERLOAD FOR 3 SEC 3AC380-480V +10/-20% 47-63HZ INTEGRATED FILTER CLASS A I/O-INTERFACE: 6DI, 2DO,1AI,1AO SAFE TORQUE OFF INTEGRATED FIELDBUS: PROFIBUS-DP PROTECTION: IP20/ UL OPEN TYPE SIZE: FSA 196X73X203(HXWXD) EXTERNAL 24V 791.34
6SL3210-1KE17-5UB1340SINAMICS G120C RATED POWER 3,0KW WITH 150% OVERLOAD FOR 3 SEC 3AC380-480V +10/-20% 47-63HZ UNFILTERED I/O-INTERFACE: 6DI, 2DO,1AI,1AO SAFE TORQUE OFF INTEGRATED FIELDBUS: USS/ MODBUS RTU PROTECTION: IP20/ UL OPEN TYPE SIZE: FSA 196X73X203(HXWXD) EXTERNAL 24V 649.45
6SL3210-1KE17-5UC1340SINAMICS G120C RATED POWER 3,0KW WITH 150% OVERLOAD FOR 3 SEC 3AC380-480V +10/-20% 47-63HZ UNFILTERED I/O-INTERFACE: 6DI, 2DO,1AI,1AO SAFE TORQUE OFF INTEGRATED FIELDBUS: CANOPEN PROTECTION: IP20/ UL OPEN TYPE SIZE: FSA 196X73X203(HXWXD) EXTERNAL 24V 725.86
6SL3210-1KE17-5UF1340SINAMICS G120C RATED POWER 3,0KW WITH 150% OVERLOAD FOR 3 SEC 3AC380-480V +10/-20% 47-63HZ UNFILTERED I/O-INTERFACE: 6DI, 2DO,1AI,1AO SAFE TORQUE OFF INTEGRATED FIELDBUS: PROFINET-PN PROTECTION: IP20/ UL OPEN TYPE SIZE: FSA 196X73X203(HXWXD) EXTERNAL 24V 704.02
6SL3210-1KE17-5UP1340SINAMICS G120C RATED POWER 3,0KW WITH 150% OVERLOAD FOR 3 SEC 3AC380-480V +10/-20% 47-63HZ UNFILTERED I/O-INTERFACE: 6DI, 2DO,1AI,1AO SAFE TORQUE OFF INTEGRATED FIELDBUS: PROFIBUS-DP PROTECTION: IP20/ UL OPEN TYPE SIZE: FSA 196X73X203(HXWXD) EXTERNAL 24V 704.02
6SL3210-1KE18-8AB1340SINAMICS G120C RATED POWER 4,0KW WITH 150% OVERLOAD FOR 3 SEC 3AC380-480V +10/-20% 47-63HZ INTEGRATED FILTER CLASS A I/O-INTERFACE: 6DI, 2DO,1AI,1AO SAFE TORQUE OFF INTEGRATED FIELDBUS: USS/ MODBUS RTU PROTECTION: IP20/ UL OPEN TYPE SIZE: FSA 196X73X203(HXWXD) EXTERNAL 24V 840.46
6SL3210-1KE18-8AC1340SINAMICS G120C RATED POWER 4,0KW WITH 150% OVERLOAD FOR 3 SEC 3AC380-480V +10/-20% 47-63HZ INTEGRATED FILTER CLASS A I/O-INTERFACE: 6DI, 2DO,1AI,1AO SAFE TORQUE OFF INTEGRATED FIELDBUS: CANOPEN PROTECTION: IP20/ UL OPEN TYPE SIZE: FSA 196X73X203(HXWXD) EXTERNAL 24V 916.86
6SL3210-1KE18-8AF1340SINAMICS G120C RATED POWER 4,0KW WITH 150% OVERLOAD FOR 3 SEC 3AC380-480V +10/-20% 47-63HZ INTEGRATED FILTER CLASS A I/O-INTERFACE: 6DI, 2DO,1AI,1AO SAFE TORQUE OFF INTEGRATED FIELDBUS: PROFINET-PN PROTECTION: IP20/ UL OPEN TYPE SIZE: FSA 196X73X203(HXWXD) EXTERNAL 24V 895.03
6SL3210-1KE18-8AP1340SINAMICS G120C RATED POWER 4,0KW WITH 150% OVERLOAD FOR 3 SEC 3AC380-480V +10/-20% 47-63HZ INTEGRATED FILTER CLASS A I/O-INTERFACE: 6DI, 2DO,1AI,1AO SAFE TORQUE OFF INTEGRATED FIELDBUS: PROFIBUS-DP PROTECTION: IP20/ UL OPEN TYPE SIZE: FSA 196X73X203(HXWXD) EXTERNAL 24V 895.03
6SL3210-1KE18-8UB1340SINAMICS G120C RATED POWER 4,0KW WITH 150% OVERLOAD FOR 3 SEC 3AC380-480V +10/-20% 47-63HZ UNFILTERED I/O-INTERFACE: 6DI, 2DO,1AI,1AO SAFE TORQUE OFF INTEGRATED FIELDBUS: USS/ MODBUS RTU PROTECTION: IP20/ UL OPEN TYPE SIZE: FSA 196X73X203(HXWXD) EXTERNAL 24V 731.31
6SL3210-1KE18-8UC1340SINAMICS G120C RATED POWER 4,0KW WITH 150% OVERLOAD FOR 3 SEC 3AC380-480V +10/-20% 47-63HZ UNFILTERED I/O-INTERFACE: 6DI, 2DO,1AI,1AO SAFE TORQUE OFF INTEGRATED FIELDBUS: CANOPEN PROTECTION: IP20/ UL OPEN TYPE SIZE: FSA 196X73X203(HXWXD) EXTERNAL 24V 807.71
6SL3210-1KE18-8UF1340SINAMICS G120C RATED POWER 4,0KW WITH 150% OVERLOAD FOR 3 SEC 3AC380-480V +10/-20% 47-63HZ UNFILTERED I/O-INTERFACE: 6DI, 2DO,1AI,1AO SAFE TORQUE OFF INTEGRATED FIELDBUS: PROFINET-PN PROTECTION: IP20/ UL OPEN TYPE SIZE: FSA 196X73X203(HXWXD) EXTERNAL 24V 785.88
6SL3210-1KE18-8UP1340SINAMICS G120C RATED POWER 4,0KW WITH 150% OVERLOAD FOR 3 SEC 3AC380-480V +10/-20% 47-63HZ UNFILTERED I/O-INTERFACE: 6DI, 2DO,1AI,1AO SAFE TORQUE OFF INTEGRATED FIELDBUS: PROFIBUS-DP PROTECTION: IP20/ UL OPEN TYPE SIZE: FSA 196X73X203(HXWXD) EXTERNAL 24V 785.88
6SL3210-1KE21-3AB1340SINAMICS G120C RATED POWER 5,5KW WITH 150% OVERLOAD FOR 3 SEC 3AC380-480V +10/-20% 47-63HZ INTEGRATED FILTER CLASS A I/O-INTERFACE: 6DI, 2DO,1AI,1AO SAFE TORQUE OFF INTEGRATED FIELDBUS: USS/ MODBUS RTU PROTECTION: IP20/ UL OPEN TYPE SIZE: FSB 196X100X203(HXWXD) EXTERNAL 24V 955.07
6SL3210-1KE21-3AC1340SINAMICS G120C RATED POWER 5,5KW WITH 150% OVERLOAD FOR 3 SEC 3AC380-480V +10/-20% 47-63HZ INTEGRATED FILTER CLASS A I/O-INTERFACE: 6DI, 2DO,1AI,1AO SAFE TORQUE OFF INTEGRATED FIELDBUS: CANOPEN PROTECTION: IP20/ UL OPEN TYPE SIZE: FSB 196X100X203(HXWXD) EXTERNAL 24V 1031.47
6SL3210-1KE21-3AF1340SINAMICS G120C RATED POWER 5,5KW WITH 150% OVERLOAD FOR 3 SEC 3AC380-480V +10/-20% 47-63HZ INTEGRATED FILTER CLASS A I/O-INTERFACE: 6DI, 2DO,1AI,1AO SAFE TORQUE OFF INTEGRATED FIELDBUS: PROFINET-PN PROTECTION: IP20/ UL OPEN TYPE SIZE: FSB 196X100X203(HXWXD) EXTERNAL 24V 1009.64
6SL3210-1KE21-3AP1340SINAMICS G120C RATED POWER 5,5KW WITH 150% OVERLOAD FOR 3 SEC 3AC380-480V +10/-20% 47-63HZ INTEGRATED FILTER CLASS A I/O-INTERFACE: 6DI, 2DO,1AI,1AO SAFE TORQUE OFF INTEGRATED FIELDBUS: PROFIBUS-DP PROTECTION: IP20/ UL OPEN TYPE SIZE: FSB 196X100X203(HXWXD) EXTERNAL 24V 1009.64
6SL3210-1KE21-3UB1340SINAMICS G120C RATED POWER 5,5KW WITH 150% OVERLOAD FOR 3 SEC 3AC380-480V +10/-20% 47-63HZ UNFILTERED I/O-INTERFACE: 6DI, 2DO,1AI,1AO SAFE TORQUE OFF INTEGRATED FIELDBUS: USS/ MODBUS RTU PROTECTION: IP20/ UL OPEN TYPE SIZE: FSB 196X100X203(HXWXD) EXTERNAL 24V 824.09
6SL3210-1KE21-3UC1340SINAMICS G120C RATED POWER 5,5KW WITH 150% OVERLOAD FOR 3 SEC 3AC380-480V +10/-20% 47-63HZ UNFILTERED I/O-INTERFACE: 6DI, 2DO,1AI,1AO SAFE TORQUE OFF INTEGRATED FIELDBUS: CANOPEN PROTECTION: IP20/ UL OPEN TYPE SIZE: FSB 196X100X203(HXWXD) EXTERNAL 24V 900.49
6SL3210-1KE21-3UF1340SINAMICS G120C RATED POWER 5,5KW WITH 150% OVERLOAD FOR 3 SEC 3AC380-480V +10/-20% 47-63HZ UNFILTERED I/O-INTERFACE: 6DI, 2DO,1AI,1AO SAFE TORQUE OFF INTEGRATED FIELDBUS: PROFINET-PN PROTECTION: IP20/ UL OPEN TYPE SIZE: FSB 196X100X203(HXWXD) EXTERNAL 24V 878.66
6SL3210-1KE21-3UP1340SINAMICS G120C RATED POWER 5,5KW WITH 150% OVERLOAD FOR 3 SEC 3AC380-480V +10/-20% 47-63HZ UNFILTERED I/O-INTERFACE: 6DI, 2DO,1AI,1AO SAFE TORQUE OFF INTEGRATED FIELDBUS: PROFIBUS-DP PROTECTION: IP20/ UL OPEN TYPE SIZE: FSB 196X100X203(HXWXD) EXTERNAL 24V 878.66
6SL3210-1KE21-7AB1340SINAMICS G120C RATED POWER 7,5KW WITH 150% OVERLOAD FOR 3 SEC 3AC380-480V +10/-20% 47-63HZ INTEGRATED FILTER CLASS A I/O-INTERFACE: 6DI, 2DO,1AI,1AO SAFE TORQUE OFF INTEGRATED FIELDBUS: USS/ MODBUS RTU PROTECTION: IP20/ UL OPEN TYPE SIZE: FSB 196X100X203(HXWXD) EXTERNAL 24V 1184.29
6SL3210-1KE21-7AC1340SINAMICS G120C RATED POWER 7,5KW WITH 150% OVERLOAD FOR 3 SEC 3AC380-480V +10/-20% 47-63HZ INTEGRATED FILTER CLASS A I/O-INTERFACE: 6DI, 2DO,1AI,1AO SAFE TORQUE OFF INTEGRATED FIELDBUS: CANOPEN PROTECTION: IP20/ UL OPEN TYPE SIZE: FSB 196X100X203(HXWXD) EXTERNAL 24V 1260.70
6SL3210-1KE21-7AF1340SINAMICS G120C RATED POWER 7,5KW WITH 150% OVERLOAD FOR 3 SEC 3AC380-480V +10/-20% 47-63HZ INTEGRATED FILTER CLASS A I/O-INTERFACE: 6DI, 2DO,1AI,1AO SAFE TORQUE OFF INTEGRATED FIELDBUS: PROFINET-PN PROTECTION: IP20/ UL OPEN TYPE SIZE: FSB 196X100X203(HXWXD) EXTERNAL 24V 1238.86
6SL3210-1KE21-7AP1340SINAMICS G120C RATED POWER 7,5KW WITH 150% OVERLOAD FOR 3 SEC 3AC380-480V +10/-20% 47-63HZ INTEGRATED FILTER CLASS A I/O-INTERFACE: 6DI, 2DO,1AI,1AO SAFE TORQUE OFF INTEGRATED FIELDBUS: PROFIBUS-DP PROTECTION: IP20/ UL OPEN TYPE SIZE: FSB 196X100X203(HXWXD) EXTERNAL 24V 1238.86
6SL3210-1KE21-7UB1340SINAMICS G120C RATED POWER 7,5KW WITH 150% OVERLOAD FOR 3 SEC 3AC380-480V +10/-20% 47-63HZ UNFILTERED I/O-INTERFACE: 6DI, 2DO,1AI,1AO SAFE TORQUE OFF INTEGRATED FIELDBUS: USS/ MODBUS RTU PROTECTION: IP20/ UL OPEN TYPE SIZE: FSB 196X100X203(HXWXD) EXTERNAL 24V 1026.01
6SL3210-1KE21-7UC1340SINAMICS G120C RATED POWER 7,5KW WITH 150% OVERLOAD FOR 3 SEC 3AC380-480V +10/-20% 47-63HZ UNFILTERED I/O-INTERFACE: 6DI, 2DO,1AI,1AO SAFE TORQUE OFF INTEGRATED FIELDBUS: CANOPEN PROTECTION: IP20/ UL OPEN TYPE SIZE: FSB 196X100X203(HXWXD) EXTERNAL 24V 1102.42
6SL3210-1KE21-7UF1340SINAMICS G120C RATED POWER 7,5KW WITH 150% OVERLOAD FOR 3 SEC 3AC380-480V +10/-20% 47-63HZ UNFILTERED I/O-INTERFACE: 6DI, 2DO,1AI,1AO SAFE TORQUE OFF INTEGRATED FIELDBUS: PROFINET-PN PROTECTION: IP20/ UL OPEN TYPE SIZE: FSB 196X100X203(HXWXD) EXTERNAL 24V 1080.59
6SL3210-1KE21-7UP1340SINAMICS G120C RATED POWER 7,5KW WITH 150% OVERLOAD FOR 3 SEC 3AC380-480V +10/-20% 47-63HZ UNFILTERED I/O-INTERFACE: 6DI, 2DO,1AI,1AO SAFE TORQUE OFF INTEGRATED FIELDBUS: PROFIBUS-DP PROTECTION: IP20/ UL OPEN TYPE SIZE: FSB 196X100X203(HXWXD) EXTERNAL 24V 1080.59
6SL3210-1KE22-6AB1340SINAMICS G120C RATED POWER 11,0KW WITH 150% OVERLOAD FOR 3 SEC 3AC380-480V +10/-20% 47-63HZ INTEGRATED FILTER CLASS A I/O-INTERFACE: 6DI, 2DO,1AI,1AO SAFE TORQUE OFF INTEGRATED FIELDBUS: USS/ MODBUS RTU PROTECTION: IP20/ UL OPEN TYPE SIZE: FSC 295X140X203(HXWXD) EXTERNAL 24V 1533.57
6SL3210-1KE22-6AC1340SINAMICS G120C RATED POWER 11,0KW WITH 150% OVERLOAD FOR 3 SEC 3AC380-480V +10/-20% 47-63HZ INTEGRATED FILTER CLASS A I/O-INTERFACE: 6DI, 2DO,1AI,1AO SAFE TORQUE OFF INTEGRATED FIELDBUS: CANOPEN PROTECTION: IP20/ UL OPEN TYPE SIZE: FSC 295X140X203(HXWXD) EXTERNAL 24V 1609.98
6SL3210-1KE22-6AF1340SINAMICS G120C RATED POWER 11,0KW WITH 150% OVERLOAD FOR 3 SEC 3AC380-480V +10/-20% 47-63HZ INTEGRATED FILTER CLASS A I/O-INTERFACE: 6DI, 2DO,1AI,1AO SAFE TORQUE OFF INTEGRATED FIELDBUS: PROFINET-PN PROTECTION: IP20/ UL OPEN TYPE SIZE: FSC 295X140X203(HXWXD) EXTERNAL 24V 1588.15
6SL3210-1KE22-6AP1340SINAMICS G120C RATED POWER 11,0KW WITH 150% OVERLOAD FOR 3 SEC 3AC380-480V +10/-20% 47-63HZ INTEGRATED FILTER CLASS A I/O-INTERFACE: 6DI, 2DO,1AI,1AO SAFE TORQUE OFF INTEGRATED FIELDBUS: PROFIBUS-DP PROTECTION: IP20/ UL OPEN TYPE SIZE: FSC 295X140X203(HXWXD) EXTERNAL 24V 1588.15
6SL3210-1KE22-6UB1340SINAMICS G120C RATED POWER 11,0KW WITH 150% OVERLOAD FOR 3 SEC 3AC380-480V +10/-20% 47-63HZ UNFILTERED I/O-INTERFACE: 6DI, 2DO,1AI,1AO SAFE TORQUE OFF INTEGRATED FIELDBUS: USS/ MODBUS RTU PROTECTION: IP20/ UL OPEN TYPE SIZE: FSC 295X140X203(HXWXD) EXTERNAL 24V 1342.55
6SL3210-1KE22-6UC1340SINAMICS G120C RATED POWER 11,0KW WITH 150% OVERLOAD FOR 3 SEC 3AC380-480V +10/-20% 47-63HZ UNFILTERED I/O-INTERFACE: 6DI, 2DO,1AI,1AO SAFE TORQUE OFF INTEGRATED FIELDBUS: CANOPEN PROTECTION: IP20/ UL OPEN TYPE SIZE: FSC 295X140X203(HXWXD) EXTERNAL 24V 1418.96
6SL3210-1KE22-6UF1340SINAMICS G120C RATED POWER 11,0KW WITH 150% OVERLOAD FOR 3 SEC 3AC380-480V +10/-20% 47-63HZ UNFILTERED I/O-INTERFACE: 6DI, 2DO,1AI,1AO SAFE TORQUE OFF INTEGRATED FIELDBUS: PROFINET-PN PROTECTION: IP20/ UL OPEN TYPE SIZE: FSC 295X140X203(HXWXD) EXTERNAL 24V 1397.13
6SL3210-1KE22-6UP1340SINAMICS G120C RATED POWER 11,0KW WITH 150% OVERLOAD FOR 3 SEC 3AC380-480V +10/-20% 47-63HZ UNFILTERED I/O-INTERFACE: 6DI, 2DO,1AI,1AO SAFE TORQUE OFF INTEGRATED FIELDBUS: PROFIBUS-DP PROTECTION: IP20/ UL OPEN TYPE SIZE: FSC 295X140X203(HXWXD) EXTERNAL 24V 1397.13
6SL3210-1KE23-2AB1340SINAMICS G120C RATED POWER 15,0KW WITH 150% OVERLOAD FOR 3 SEC 3AC380-480V +10/-20% 47-63HZ INTEGRATED FILTER CLASS A I/O-INTERFACE: 6DI, 2DO,1AI,1AO SAFE TORQUE OFF INTEGRATED FIELDBUS: USS/ MODBUS RTU PROTECTION: IP20/ UL OPEN TYPE SIZE: FSC 295X140X203(HXWXD) EXTERNAL 24V 1970.17
6SL3210-1KE23-2AC1340SINAMICS G120C RATED POWER 15,0KW WITH 150% OVERLOAD FOR 3 SEC 3AC380-480V +10/-20% 47-63HZ INTEGRATED FILTER CLASS A I/O-INTERFACE: 6DI, 2DO,1AI,1AO SAFE TORQUE OFF INTEGRATED FIELDBUS: CANOPEN PROTECTION: IP20/ UL OPEN TYPE SIZE: FSC 295X140X203(HXWXD) EXTERNAL 24V 2046.58
6SL3210-1KE23-2AF1340SINAMICS G120C RATED POWER 15,0KW WITH 150% OVERLOAD FOR 3 SEC 3AC380-480V +10/-20% 47-63HZ INTEGRATED FILTER CLASS A I/O-INTERFACE: 6DI, 2DO,1AI,1AO SAFE TORQUE OFF INTEGRATED FIELDBUS: PROFINET-PN PROTECTION: IP20/ UL OPEN TYPE SIZE: FSC 295X140X203(HXWXD) EXTERNAL 24V 2024.75
6SL3210-1KE23-2AP1340SINAMICS G120C RATED POWER 15,0KW WITH 150% OVERLOAD FOR 3 SEC 3AC380-480V +10/-20% 47-63HZ INTEGRATED FILTER CLASS A I/O-INTERFACE: 6DI, 2DO,1AI,1AO SAFE TORQUE OFF INTEGRATED FIELDBUS: PROFIBUS-DP PROTECTION: IP20/ UL OPEN TYPE SIZE: FSC 295X140X203(HXWXD) EXTERNAL 24V 2024.75
6SL3210-1KE23-2UB1340SINAMICS G120C RATED POWER 15,0KW WITH 150% OVERLOAD FOR 3 SEC 3AC380-480V +10/-20% 47-63HZ UNFILTERED I/O-INTERFACE: 6DI, 2DO,1AI,1AO SAFE TORQUE OFF INTEGRATED FIELDBUS: USS/ MODBUS RTU PROTECTION: IP20/ UL OPEN TYPE SIZE: FSC 295X140X203(HXWXD) EXTERNAL 24V 1751.87
6SL3210-1KE23-2UC1340SINAMICS G120C RATED POWER 15,0KW WITH 150% OVERLOAD FOR 3 SEC 3AC380-480V +10/-20% 47-63HZ UNFILTERED I/O-INTERFACE: 6DI, 2DO,1AI,1AO SAFE TORQUE OFF INTEGRATED FIELDBUS: CANOPEN PROTECTION: IP20/ UL OPEN TYPE SIZE: FSC 295X140X203(HXWXD) EXTERNAL 24V 1828.28
6SL3210-1KE23-2UF1340SINAMICS G120C RATED POWER 15,0KW WITH 150% OVERLOAD FOR 3 SEC 3AC380-480V +10/-20% 47-63HZ UNFILTERED I/O-INTERFACE: 6DI, 2DO,1AI,1AO SAFE TORQUE OFF INTEGRATED FIELDBUS: PROFINET-PN PROTECTION: IP20/ UL OPEN TYPE SIZE: FSC 295X140X203(HXWXD) EXTERNAL 24V 1806.45
6SL3210-1KE23-2UP1340SINAMICS G120C RATED POWER 15,0KW WITH 150% OVERLOAD FOR 3 SEC 3AC380-480V +10/-20% 47-63HZ UNFILTERED I/O-INTERFACE: 6DI, 2DO,1AI,1AO SAFE TORQUE OFF INTEGRATED FIELDBUS: PROFIBUS-DP PROTECTION: IP20/ UL OPEN TYPE SIZE: FSC 295X140X203(HXWXD) EXTERNAL 24V 1806.45
6SL3210-1KE23-8AB1340SINAMICS G120C RATED POWER 18,5KW WITH 150% OVERLOAD FOR 3 SEC 3AC380-480V +10/-20% 47-63HZ INTEGRATED FILTER CLASS A I/O-INTERFACE: 6DI, 2DO,1AI,1AO SAFE TORQUE OFF INTEGRATED FIELDBUS: USS/ MODBUS RTU PROTECTION: IP20/ UL OPEN TYPE SIZE: FSC 295X140X203(HXWXD) EXTERNAL 24V 2352.20
6SL3210-1KE23-8AC1340SINAMICS G120C RATED POWER 18,5KW WITH 150% OVERLOAD FOR 3 SEC 3AC380-480V +10/-20% 47-63HZ INTEGRATED FILTER CLASS A I/O-INTERFACE: 6DI, 2DO,1AI,1AO SAFE TORQUE OFF INTEGRATED FIELDBUS: CANOPEN PROTECTION: IP20/ UL OPEN TYPE SIZE: FSC 295X140X203(HXWXD) EXTERNAL 24V 2428.60
6SL3210-1KE23-8AF1340SINAMICS G120C RATED POWER 18,5KW WITH 150% OVERLOAD FOR 3 SEC 3AC380-480V +10/-20% 47-63HZ INTEGRATED FILTER CLASS A I/O-INTERFACE: 6DI, 2DO,1AI,1AO SAFE TORQUE OFF INTEGRATED FIELDBUS: PROFINET-PN PROTECTION: IP20/ UL OPEN TYPE SIZE: FSC 295X140X203(HXWXD) EXTERNAL 24V 2406.77
6SL3210-1KE23-8AP1340SINAMICS G120C RATED POWER 18,5KW WITH 150% OVERLOAD FOR 3 SEC 3AC380-480V +10/-20% 47-63HZ INTEGRATED FILTER CLASS A I/O-INTERFACE: 6DI, 2DO,1AI,1AO SAFE TORQUE OFF INTEGRATED FIELDBUS: PROFIBUS-DP PROTECTION: IP20/ UL OPEN TYPE SIZE: FSC 295X140X203(HXWXD) EXTERNAL 24V 2406.77
6SL3210-1KE23-8UB1340SINAMICS G120C RATED POWER 18,5KW WITH 150% OVERLOAD FOR 3 SEC 3AC380-480V +10/-20% 47-63HZ UNFILTERED I/O-INTERFACE: 6DI, 2DO,1AI,1AO SAFE TORQUE OFF INTEGRATED FIELDBUS: USS/ MODBUS RTU PROTECTION: IP20/ UL OPEN TYPE SIZE: FSC 295X140X203(HXWXD) EXTERNAL 24V 2133.90
6SL3210-1KE23-8UC1340SINAMICS G120C RATED POWER 18,5KW WITH 150% OVERLOAD FOR 3 SEC 3AC380-480V +10/-20% 47-63HZ UNFILTERED I/O-INTERFACE: 6DI, 2DO,1AI,1AO SAFE TORQUE OFF INTEGRATED FIELDBUS: CANOPEN PROTECTION: IP20/ UL OPEN TYPE SIZE: FSC 295X140X203(HXWXD) EXTERNAL 24V 2210.30
6SL3210-1KE23-8UF1340SINAMICS G120C RATED POWER 18,5KW WITH 150% OVERLOAD FOR 3 SEC 3AC380-480V +10/-20% 47-63HZ UNFILTERED I/O-INTERFACE: 6DI, 2DO,1AI,1AO SAFE TORQUE OFF INTEGRATED FIELDBUS: PROFINET-PN PROTECTION: IP20/ UL OPEN TYPE SIZE: FSC 295X140X203(HXWXD) EXTERNAL 24V 2188.47
6SL3210-1KE23-8UP1340SINAMICS G120C RATED POWER 18,5KW WITH 150% OVERLOAD FOR 3 SEC 3AC380-480V +10/-20% 47-63HZ UNFILTERED I/O-INTERFACE: 6DI, 2DO,1AI,1AO SAFE TORQUE OFF INTEGRATED FIELDBUS: PROFIBUS-DP PROTECTION: IP20/ UL OPEN TYPE SIZE: FSC 295X140X203(HXWXD) EXTERNAL 24V 2188.47