0

Разделы

Скачать Заказные данные 
Milltronics MCS

Milltronics MCS - это компактные, надежные ленточные весы с весоизмеритльными ячейками из нерж. стали для использования в мобильных дробилках и грохотах.

 

 


Особенности

Скачать Заказные данные 
Milltronics MCS
  • Cтрогий дизайн
  • Экономия места
  • Простая модификация
  • Низкая стоимость
  • Весоизмерительные ячейки из нерж. стали
  • Включает калибровку веса

 


Область применения

Скачать Заказные данные 
Milltronics MCS

Milltronics MCS  - это компактные, надежные ленточные весы с весоизмерительными ячейками из нерж. стали для использования в мобильных дробилках и грохотах. Они обеспечивают непрерывное взвешивание при минимальных затратах. Весоизмерительные ячейки из нерж. стали MCS имеют долговременную стабильность, надежные и точные результаты измерения.

Модульная конструкция и простой монтаж весов  MCS обеспечивают короткие сроки пуска и ввод в эксплуатацию. В комбинации с Milltronics BW 100 или BW 500 с микропроцессорным управлением, весы MUS обеспечивают индикацию мгновенного массового расхода, суммарного количества, значение величины нагрузки на ленту и скорости транспортируемых продуктов на конвеерных весах.

Дополнением к весоизмерительной системе служит датчик скорости на конвеерной ленте, встроенный в интегратор. На установках с мобильными дробилками используется компактный и прочный датчик скорости TASS, совмещенный с весами MCS. 

 


Технические данные

Скачать Заказные данные 
Milltronics MCS

 

Технические параметры

 

Принцип измерения

Тензоизмерительные весоизмерительные ячейки измеряют нагрузку на роликовых опорах ленточного транспортера.

Типичные применения

Мобильные дробилки

Характеристики

 

Точность

± 0.5 to 1% от суммарного значения  4 to 1 раб. диапазона, в зависимости от применений

Ненадежность

0.01% от номинального выхода

Нелинейность

0.02% от номинального выхода

Дизайн ленты

 

Ширина ленты

  • До 1200 мм
  • См. раздел Размеры

Скорость ленты

До 3 м/с

Мощность

До 1200 т/ч  при максимальной скорости ленты

Наклон ленточного транспортера

  • ± 20° от горизонтали, фиксированный наклон
  • До ± 30° с уменьшением точности

Роликовые опоры

 

Профиль роликовых опор

  • Плоский до 35°
  • To 45° с уменьшенной точностью

Диаметр роликовых опор

100 .. 150 мм (4 to 6”)

Расстояние между роликовыми опорами

0.6 .. 1.2 м

Весоизмерительная ячейка

 

Конструкция

Коррозионно-стойкая сталь

Питание

10 В DC ном., 15 В DC максимум

Выход

Питание 2 мВ/В при ном. мощности весоизмерительной ячейки

Нелинейность и гистерезис

0.02% от номинального выхода

Воспроизводимость

0.01% от номинального выхода

Мощность

50, 100, 250 нерж. сталь

Перегрузка

150 % от номинальной мощности,  300% ном. мощности

Температура

  • -40 ... +65 °C (-40 ... +150 °F) рабочего диапазона
  • -10 ... 40 °C (15 ... 105 °F) конпенс.

Вес

До 20 кг, 10 кг

Подключение (к интегратору)

  • < 150 м (500 ft.) 18 AWG (0.75 мм2) 6-ти провод. экран. кабель 
  • > 150 м (500 ft.) до 300м (1000 ft.) 18 .. 22 AWG (0.75 .. 0.34 мм2), 8-ти провод. экран. кабель

Взрывоопасные зоны

При использовании искробезопасных барьеров

Допуски

CE

 

 


Чертеж

Скачать Заказные данные 
Milltronics MCS

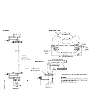
 Размеры MCS

 


Схема подключения

Скачать Заказные данные 
Milltronics MCS

Подключение MCS

 


Заказные данные

Скачать Заказные данные 

Цена на сайте указана розничная в ЕВРО без учета НДС.Для уточнения цены и размера предоставляемой скидки - звоните или присылайте заявки

Заказной номерPGОписание продуктаЦена
7MH7125-.....854SIEMENS MILLTRONICS MСS ЛЕНТОЧНЫЕ ВЕСЫ 2566.26

 


Аксессуары

Скачать Заказные данные 

Цена на сайте указана розничная в ЕВРО без учета НДС.Для уточнения цены и размера предоставляемой скидки - звоните или присылайте заявки

Заказной номерPGОписание продуктаЦена
7MH7723-1AA8ZMПРИНАДЛЕЖНОСТЬ ДЛЯ AS 100 75.26
7MH7723-1BN8ZMILE-37,LEAF SPRING KIT,A2 179.14
7MH7723-1BP8ZMILE-37,LEAF SPRING KIT,A3 179.14
7MH7723-1BQ8ZMILE-61,LEAF SPRING KIT 751.54