0

Разделы

Milltronics MFA 4p

MFA 4p - высокочувствительное одноточечное реле числа оборотов для зондов числа оборотов MSP и XPP.

 


Особенности

Milltronics MFA 4p
  • Макс. расстояние 100 мм (4”) между зондом и измеряемым предметом
  • Регистрация высокого/низкого числа оборотов по выбору через переключатель
  • Установка точки переключения 2 - 3000 ppm (импульсов/минута)
  • Устанавливаемая задержка старта
  • Индикация работы зондов и состояния реле
  • Общее использование, подходит для большинства промышленных приложений; прочная конструкция зонда для высокой надежности

 


Область применения

Milltronics MFA 4p

Прибор преимущественно используется для контроля числа оборотов в поворотных, поршневых и транспортировочных установках. Как только возникает уменьшение скорости или неполадка, пользователь получает сообщение о необходимости остановки установки. Благодаря своей надежности MFA 4p является доступным решением для защиты дорогих установок.

Система подходит для большинства промышленных приложений. Она используется в натяжных барабанах, на приводных роликах, валах двигателей, ленточных/цепных/шнековых транспортерах, а также в ковшовых элеваторах, копрессорах и насосах.

Благодаря устанавливаемой функции задержки в 0-60 сек. контролируемое устройство может ускориться до своей обычной рабочей скорости до срабатывания контроля. Для выполнения специальных требований имеется ряд различных зондов, например, для высокой температуры, коррозии и приложений Class I, II и III. Благодаря допуску CE MFA 4p отвечает требованиям горной промышленности, нерудных полезных ископаемых, цемента и многих других.

 


Дизайн

Milltronics MFA 4p
Монтаж

Монтаж MSP-12, MSP-3; XPP-5

Зонды

MFA 4p зонды числа оборотов

 


Технические данные

Milltronics MFA 4p

Принцип работы

 

Принцип измерения

Контроль числа оборотов и тревога

Типичное приложение

Контроль состояния покоя на натяжных барабанах, шнеках или ковшовых элеваторах

Свойства

  • Регистрация низкого/высокого числа оборотов по выбору через переключатель
  • Установка точки переключения: 2 до 3000 PPM
  • Установка задержки старта: 0-60 сек.
  • Индикация режима зондов и состояния реле

Выход

2 согласованно работающих реле с 1 перекидным контактом каждое (SPDT), ном. мощность 8A @ AC 250 V стабильно

Параметры

 

Воспроизводимость

±1%

Гистерезис

±0.25%

Динамичесикий диапазон

0-7200 PPM

Диапазон внешних температур

-20 до +50 °C (-5 до +122 °F)

Конструктивные особенности

 

Класс защиты корпуса

Тип 4X/NEMA 4X/IP65

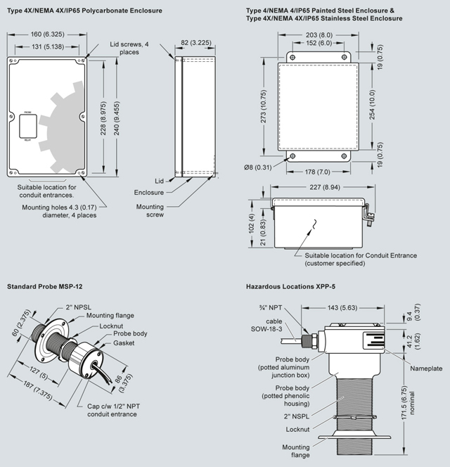
Размеры корпуса

160 мм x 240 мм x 82 мм (6.3” x 9.5” x 3.2”)

Материал корпуса

Polycarbonate

Питание

100/115/200/230 V AC , 50/60 Гц, 15 VA ±10% ном. напряжения

Допуски

CE, CSAUS/C, FM

 

 


Чертеж

Milltronics MFA 4p

Размеры MFA 4p

 


Заказные данные

Цена на сайте указана розничная в ЕВРО без учета НДС.Для уточнения цены и размера предоставляемой скидки - звоните или присылайте заявки

Заказной номерPGОписание продуктаЦена
7MH7144-....854ДЕТЕКТОР ДВИЖЕНИЯ MFA 4P, КОРПУС-ПОЛИКАРБАНАТ, ВХОД. НАПРЯЖЕНИЕ 100/115/200/230В A. C.50/60ГЦ 368.88
7MH7145-..854УСИЛИТЕЛЬ СИГНАЛА (RMA)МЕЖДУ MSP-1, MSP-3 , MSP-9 И MFA 4P 244.86
7MH7146-...854ДАТЧИКИ НАЛИЧИЯ ДВИЖЕНИЯ ДЛЯ СОЕДИНЕНИЯ С ДЕТЕКОТРОМ ДВИЖЕНИЯ MFA 4P 0.00

 


Аксессуары

Цена на сайте указана розничная в ЕВРО без учета НДС.Для уточнения цены и размера предоставляемой скидки - звоните или присылайте заявки

Заказной номерPGОписание продуктаЦена
7MH7723-1CQ8ZMLOCKNUT ,MSP-1,SPARE 19.08
7MH7723-1CR8ZMLOCKNUT,MSP-3,MSP-12,XPP-5, SPARE 23.32
7MH7723-1CS8ZMMOUNTING FLANGE,MSP-3,MSP-12, XPP-5, SPARE 24.38
7MH7723-1CT8ZMMOUNTING BRACKET,MSP-9,SPARE 145.22
7MH7723-1CU8ZMLID,MSP-3,MSP-12,1/2NPT,SPARE 24.38
7MH7723-1CV8ZMLID,MSP-9,SPARE 47.70
7MH7723-1CW8ZMLID,GASKET,MSP-3,MSP-9,SPARE 13.78
7MH7723-1CX8ZMLID, GASKET,MSP-12,SPARE 13.78
7MH7723-1DT8ZMCARD'RMA' 2 WIRE,SM,SPARE 120.84
7MH7723-1DU8ZMCARD,MFA 4P,AC,CE,SPARE 310.58
7MH7723-1DV8ZMCARD,MFA 4P,AC,SLOW SPEED, CE,SPARE 401.74
7MH7723-1DW8ZMMFA 4P, RELAY,SPARE 16.96
7MH7723-1DX8ZMMFA 4P,TRANSFORMER, SPARE 43.46
7MH7723-1GY8ZMKIT, SPARE, LID ASSEMBLY MFA-4P 117.66
7ML1998-5FM018ZMинструкция по эксплуатации, обнаружение об ошибки, сенсоры PROBES CE, английский 12.72
7ML1998-5FM118ZMинструкция по эксплуатации, обнаружение об ошибки, сенсоры PROBES CE, французский 12.72
7ML1998-5FM218ZMинструкция по эксплуатации, обнаружение об ошибки, сенсоры PROBES CE, испанский 12.72
7ML1998-5FM318ZMинструкция по эксплуатации, обнаружение об ошибки, сенсоры PROBES CE, немецкий 12.72