0

Разделы

Преобразователь частоты ET 200pro FC

 

ET 200pro FC стандартного исполнения и с набором встроенных функций безопасности

  • Две версии: с и без встроенных функций безопасности.
  • Выходная мощность 1.1 кВт (1.5 кВт при температуре не выше 45 °C).
  • Векторное управление, управление частотой или моментом без использования датчиков.
  • Встроенный узел управления электромагнитным тормозом =200 В.
  • Рекуперация энергии. 
  • Силовая внутренняя шина, формируемая силовыми перемычками, с нагрузочной способностью до 25 A на сегмент. 
  • Простая и удобная настройка параметров через сеть.
  • Широкий набор диагностических функций.

 

 


Особенности

Преобразователь частоты ET 200pro FC
  • Преобразователь частоты полностью интегрируется в станции ET 200pro и обладают всеми положительными чертами этой станции: работа вне шкафов управления, проста установки в станцию, обмен данными через внутреннюю шину станции, формирование силовой шины 3-фазного переменного тока для питания нагрузки, исчерпывающий набор диагностических функций, возможность замены преобразователя без побочных эффектов для других модулей станции.
  • Формирование силовой шины 3-фазного переменного тока с минимальными затратами на монтаж. В каждом модуле ET 200pro FC есть сквозные участки шины, соединение между модулями выполняется готовыми силовыми перемычками. Суммарный ток нагрузки силовой шины не должен превышать 25 A.
  • Комбинированное использование преобразователей частоты с модулями ввода-вывода и силовыми модулями (например, RSM) станции.
  • Вход для подключения датчика PTC/KTY для обеспечения защиты двигателя. 
  • Встроенный узел управления работой электромагнитного тормоза =200 В.
  • Слот для установки опциональной микро карты памяти (MMC) для сохранения параметров настройки и обеспечения возможности быстрой замены преобразователя частоты с автоматической настройкой нового модуля.
  • Поддержка режимов регулирования частоты, а также векторного управления или управления моментом без использования датчиков обратной связи.
  • Программное обеспечение STARTER, для графической настройки параметров приводов Siemens через сеть или при непосредственном подключении к преобразователю частоты. Замечание: доступ со стороны пакета STARTER к преобразователю частоты через сеть невозможен, если между компьютером и преобразователем частоты присутствует хотя бы один центральный процессор. Это положение распространяется и на станции ET 200pro с интеллектуальным интерфейсным модулем IM154-8 CPU.
  • Поддержка режима генераторного торможения двигателя с рекуперацией энергии в сеть, отказ от использования гасящих сопротивлений.
  • Наличие версии ET 200pro FC (F-преобразователь) с поддержкой сертифицированных функций обеспечения безопасности обслуживающего персонала и машин. Упрощение архитектуры машин, поддержка широкого спектра диагностических функций.
  • Минимальное время реакции F-преобразователя частоты на сигналы датчиков безопасности за счет локальной активации функций безопасности с помощью модуля F-RSM.

 


Область применения

Преобразователь частоты ET 200pro FC
  • Плавное регулирование частоты вращения 3-фазных асинхронных двигателей.
  • Концепция модульного построения и удобства обслуживания преобразователей частоты, идеально соответствующая требованиям производств с высокими затратами на простой оборудования.
  • Оптимальное использование нескольких преобразователей частоты в одной станции для одновременного управления работой нескольких двигателей.
  • Использование преобразователей, как в простых, так и в более сложных приводах с использованием режима векторного управления и управления электромагнитным тормозом.
  • Поддержка режима управления вращающим моментом, необходимого для машин, постоянно имеющих нагрузку на валу двигателя.
  • Поддержка режимов торможения с рекуперацией энергии в сеть, удобных для машин с большими центробежными массами, машин, опускающих грузы, и т.д.
  • Снижение затрат на построение систем обеспечения безопасности предприятия за счет использования преобразователей частоты соответствующих версий. Дополнительное снижение затрат за счет мониторинга частоты вращения двигателя без использования датчика обратной связи.

 

 


Дизайн

Преобразователь частоты ET 200pro FC

Станция ET 200pro с двумя установленными преобразователями частоты

 

ET 200pro FC состоит из следующих компонентов:

  • Преобразователь ET 200pro FC стандартного исполнения или исполнения с встроенными функциями обеспечения безопасности.
  • Специальный модуль внутренней шины станции, на который устанавливается преобразователь частоты.

 

Аксессуары

Состав:

  • Оптический соединительный кабель RS232 для непосредственного подключения к компьютеру с программным обеспечением STARTER. 
  • Микро карта памяти MMC При необходимости все параметры настройки преобразователя можно сохранить в микро карте памяти (MMC). Этот вариант позволяет производить быструю замену преобразователей частоты без их повторной настройки. Все необходимые параметры будут считаны новым преобразователем из карты памяти.

 

 


Технические данные

Преобразователь частоты ET 200pro FC

Преобразователь частоты ET 200pro с встроенными функциями обеспечения безопасности 

Выбираемые характеристики 

Встроенные функции обеспечения безопасности в соответствии с требованиями категории безопасности 3 по EN 954-1 и уровня безопасности SIL 2 по IEC 61508

  • Safe Torque Off (STO): обеспечивает безопасную остановку двигателя при превышении допустимого значения вращающего момента. 
  • Safely Limited Speed (SLS)1) : выполняет контроль достижения заданной частоты вращения двигателя без использования датчика обратной связи.
  • Safe Stop 1 (SS1) 1) : выполняет мониторинг снижение частоты вращения двигателя до нуля после выдачи команды на его остановку. Для стандартных двигателей датчик частоты вращения не нужен.
  • Активизация функций безопасности на локальном уровне с помощью модуля F-RSM.

Электрические параметры 

Напряжение питания силовой цепи

Переменное, трехфазное, (380 ... 480 В) ±10%

Выходная мощность(в диапазоне температур 0 ... 55 °C)

1.1 кВт

Номинальный входной ток(в диапазоне температур 0 ... 55 °C)

2.0 A

Номинальный выходной ток

(в диапазоне температур 0 ... 55 °C)

3.5 A

Выходная мощность(в диапазоне температур 0 ... 45 °C)

1.5 кВт

Номинальный входной ток(в диапазоне температур 0 ... 45 °C)

2.5 A

Номинальный выходной ток

(в диапазоне температур 0 ... 45 °C)

3.9 A

Частота переменного тока

47 ... 63 Гц

Перегрузочная способность

  • 150% номинального тока в течение 60 с с цикличностью повторения 300 с
  • 200% номинального тока в течение 3 с с цикличностью повторения 300 с

Выходная частота

0 ... 650 Гц

Тактовая частота

4 кГц (стандартная), 2 ... 16 кГц с шагом настройки 2 кГц

Ток короткого замыкания (SCCR- Short Circuit Current Rating)2)

10 кА

Игнорируемый частотный диапазон

1, программируется

КПД

≥96%

Интерфейсы

  • Подключения к PROFIBUS (PROFINET в подготовке) через внутреннюю шину ET 200pro
  • Оптический интерфейс с поддержкой протокола USS для оптического соединительного кабеля RS232
  • Слот для установки микро карты памяти (MMC) для сохранения/ считывания параметров настройки.
  • PTC/KTY84 интерфейс для мониторинга температуры двигателя

Функции 

Методы управления и регулирования

  • V/f  управление – линейное (M~n) с/без регулирования потока (FCC - flux current control), квадратичное (M~n2)  или настраиваемое
  • Векторное управление без использования датчика обратной связи
  • Управление моментом 

Функции оперативного управления

Шаговый режим, свободные функциональные блоки (FFB), генератор пилообразного напряжения, автоматический рестарт после перерыва в питании, безударное подключение преобразователя к вращающемуся двигателю

Функции торможения

  • Рекуперативное торможение без использования тормоза и тормозного сопротивления
  • Управление электромагнитным тормозом 

Функции защиты

От пониженного напряжения, перенапряжения, повреждений заземления, коротких замыканий, опрокидывания двигателя, перегрева (I2t или датчик) двигателя, перегрева конвертора, блокировки двигателя

Подключаемые двигатели

  • Низковольтные 3-фазные асинхронные двигатели 
  • Длина экранированного кабеля не более 15 м

Конструктивные параметры 

Степень защиты

IP65

Диапазон рабочих температур

0 ... +55 °C

Увеличение выходной мощности в диапазоне 0 ... +45 °C

Монтажное положение

Вертикальное (вертикальное положение пластин радиатора)

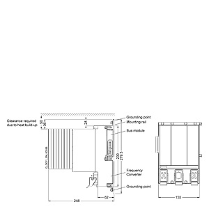
Габариты (Ш x В x Г) в мм(включая модуль внутренней шины станции)

155 x 230 x 213

Масса

2.5 кг

Стандарты 

Совместимость с

UL, cUL ,CE, c-tick, директивой для низковольтных устройств 73/23/EEC, директивой электромагнитной совместимости 89/336/EEC

1) Функции SLS и SS1 сертифицированы для асинхронных двигателей без датчиков частоты вращения. Эти функции не могут использоваться для грузоподъемных машин и намоточных станков.

2) Действительно для установки в промышленных шкафах управления по NEC Article 409 / UL 508A.

http://www.support.automation.siemens.com/ww/view/en/23995621

 

Показатели снижения нагрузки

Тактовая частота 

Диапазон температур °C

Номинальный выходной ток в A при тактовой частоте 

2 кГц

4 кГц

6 кГц

8 кГц

10 кГц

12 кГц

14 кГц

16 кГц

0 … 55 (1.1 кВт)

3.5

3.5

2.8

2.2

1.6

1.1

0.5

-

0 … 45 (1.5 кВт)

3.9

3.9

3.9

3.9

3.4

3.0

2.6

2.2

 

 


Дополнительно

Преобразователь частоты ET 200pro FC
The following accessories are available:

Description

Order No.

Connector set

for power supply, HanQ4/2

2.5 mm²

4.0 mm²

6.0 mm²

3RK1911-2BE50

3RK1911-2BE10

3RK1911-2BE30

Pre-assembled motor cable with connector on one end, shielded, HanQ8

Length 1.5 m

Length 3 m

Length 5 m

Length 10 m

6ES7194-1LA01-0AA0

6ES7194-1LB01-0AA0

6ES7194-1LC01-0AA0

6ES7194-1LD01-0AA0

Frequency converter connector

for motor cable, shielded, HanQ8

6ES7194-1AB01-0XA0

Power jumper plug

for 400 V power transmission to following 400 V modules

3RK1922-2BQ00

RS232 interface cable

for parameterizing the converter with the STARTER tool via a direct point-to-point connection

3RK1922-2BP00

Memory card (MMC)

for parameter settings of the ET 200S FC and ET 200pro FCIf required, the complete parameter settings of the frequency converter can be saved on a memory card (MMC). When servicing, the plant is immediately ready for use again after replacing the frequency converter and inserting the memory card.

6SL3254-0AM00-0AA0

 

 


Чертеж

Преобразователь частоты ET 200pro FC

Преобразователь частоты ET 200pro FC с модулем внутренней шины станции и профильной шиной

 

 


Аксессуары

Цена на сайте указана розничная в ЕВРО без учета НДС.Для уточнения цены и размера предоставляемой скидки - звоните или присылайте заявки

Заказной номерPGОписание продуктаЦена
3RK1911-2BE1042D5 CONTACT SOCKETS 4MM2 CONNECTOR SET POWER SUPPLY F. CONNECTION TO MS, RSM OF ET 200PRO W. SLEEVE HOUSING ANGLED OUTLET SOCKET INSERT HAN Q4/2 INCL. SCREW FITTING 39.22
3RK1911-2BE3042D5 CONTACT SOCKETS 6MM2 CONNECTOR SET POWER SUPPLY F. CONNECTION TO MS, RSM OF ET 200PRO W. SLEEVE HOUSING ANGLED OUTLET SOCKET INSERT HAN Q4/2 INCL. SCREW FITTING 39.22
3RK1911-2BE5042D5 CONTACT SOCKETS 2,5MM2 CONNECTOR SET POWER SUPPLY F. CONNECTION TO MS, RSM OF ET 200PRO W. SLEEVE HOUSING ANGLED OUTLET SOCKET INSERT HAN Q4/2 INCL. SCREW FITTING 39.22
3RK1922-2BP0042DRS232 INTERFACE CABLE FOR SERIAL DATA CONNECTION BETWEEN ET 200PRO MS/FC AND LAPTOP/PC/PG OR MS AND HANDHELD DEVICE 3RK1922-3BA00 94.30
3RK1922-2BQ0042DPOWER JUMPER PLUG FOR POWER TRANSMISSION (400V) FROM ET 200PRO REPAIR SWITCH MODULE OR MOTOR STARTER TO MOTOR STARTER 56.47
6SL3054-4AG00-0AA0753SINAMICS S110 МУЛЬТИМЕДИЙНАЯ ПЛАТА 64 MБ ПУСТАЯ 57.33
6SL3254-0AM00-0AA0343ЗУ ПАРАМЕТРОВ ММC ДЛЯ ET 200S FC/SINAMICS G120 55.13
6SL3255-0AA00-4HA0343SINAMICS G120/G120D И SIMATIC ET200S FC/ET200 PRO FC ПУЛЬТ РУЧНОГО УПРАВЛЕНИЯ ДЛЯ ИНТЕЛЛЕКТУАЛЬНОЙ ПАНЕЛИ ОПЕРАТОРА (IOP), СОДЕРЖИТ: IOP, КОРПУС ПУЛЬТА, БЛОК ПИТАНИЯ (ИНТЕРНАЦ.), АККУМУЛЯТОРЫ (4 X AA), RS232 СОЕДИНИТЕЛЬНЫЙ КАБЕЛЬ (3M) И КАБЕЛЬ USB (1 М) 311.77
6SL3555-0PA00-2AA0346SINAMICS G120D КАЬЕЛЬ ИНТЕРФЕЙСА USB ДЛИНА 2,5 M 155.88