Самоцентрирующаяся качающаяся опора для весоизмерительных ячеек серии RN благодаря свой небольшой высоте отлично подходит для резервуарных и платформенных весов.
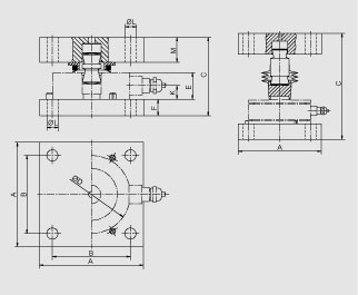
Качающаяся опора состоит из подвижной стойки, головной плиты (верхняя часть опоры) и плиты основания (нижняя часть опоры).
Самоцентрирующаяся подвижная опора позволяет головной плите и, соответственно, несущей конструкции следовать горизонтальным отклонениям (например, при колебаниях температуры). Конструкция стойки создает противодействующую силу, которая зависит от величины отклонения и приложенной нагрузки. Если несущая конструкция отклоняется по горизонтали более, чем на 4 мм (номинальная нагрузка до 5 т), 7мм (номинальная нагрузка до 13 т) или 10 мм (номинальная нагрузка до 60 т) необходимо ограничить боковой ход несущей конструкции (например, с помощью упоров). Необходимо принять меры против подъема несущей конструкции, изменив ее соответствующим образом.
Весоизмерительная ячейка не входит в объем поставки опоры.
| Качающаяся опора 0,06 ... 13 т (слева) | Качающаяся опора 28/60 т (справа) |
|---|---|
| | |
| Номинальная нагрузка | A | B | C | ØD | E | F | K | ØL | M |
|---|---|---|---|---|---|---|---|---|---|
| 60 ... 280 кг | 80 | 60 | 52 | 63 | 22 | 8 | 11 | 9 | 12 |
| 0,5 т, 1 т | 100 | 75 | 79 | 80 | 25 | 15 | 10 | 11 | 25 |
| 2 т, 3,5 т, 5 т | 100 | 75 | 79 | 80 | 30 | 15 | 8,5 | 11 | 25 |
| 10 т, 13 т | 120 | 90 | 121,2 | 95 | 35 | 20 | 20 | 14 | 40 |
| 28 т | 160 | 120 | 203 | 120 | 53 | 30 | 25 | 22 | 40 |
| 60 т | 200 | 140 | 254 | 140 | 69 | 36 | 34 | 26 | 50 |
Качающаяся опора для весоизмерительных ячеек SIWAREX R серии RN, размеры
Цена на сайте указана розничная в ЕВРО без учета НДС.Для уточнения цены и размера предоставляемой скидки - звоните или присылайте заявки
| Заказной номер | PG | Описание продукта | Цена |
| 7MH4115-3DB11 | 817 | SIWAREX R ВЕРХНИЙ МОДУЛЬ ДЛЯ НАГРУЗОЧНЫХ ЯЧЕЕК СЕРИИ RH И RS - РАСЧЕТНАЯ НАГРУЗКА 60 KG, 130 KG,280KG - СДЕЛАНО ИЗ НЕРЖАВЕЮЩЕЙ СТАЛИ СОДЕРЖИТ: - ВЕРХНЯЯ ПЛАСТИНА;СИЛОВАЯ НАПРАВЛЯЮЩАЯ ЧАСТЬ - САМОУСТАНАВЛИВАЮЩИЙСЯ БОЛТ | 140.98 |
| 7MH4115-3DC11 | 817 | SIWAREX R ПЛАСТИНА ОСНОВАНИЯ ДЛЯ НАГРУЗОЧНЫХ ЯЧЕЕК СЕРИИ RH И RS - РАСЧЕТНАЯ НАГРУЗКА 60 KG,130 KG,280KG - СДЕЛАНО ИЗ НЕРЖАВЕЮЩЕЙ СТАЛИ СОДЕРЖИТ: - ПЛАСТИНА ОСНОВАНИЯ И 3 ШТИФТА | 69.96 |
| 7MH4115-5BB11 | 817 | SIWAREX R ВЕРХНИЙ МОДУЛЬ ДЛЯ НАГРУЗОЧНЫХ ЯЧЕЕК СЕРИИ RH - РАСЧЕТНАЯ НАГРУЗКА 13T - СДЕЛАНО ИЗ НЕРЖАВЕЮЩЕЙ СТАЛИ СОДЕРЖИТ: - ВЕРХНЯЯ ПЛАСТИНА; СИЛОВАЯ НАПРАВЛЯЮЩАЯ ЧАСТЬ - САМОУСТАНАВЛИВАЮЩИЙСЯ БОЛТ | 318.00 |
| 7MH4115-5BC11 | 817 | SIWAREX R ПЛАСТИНА ОСНОВАНИЯ ДЛЯ НАГРУЗОЧНЫХ ЯЧЕЕК СЕРИИ RH - РАСЧЕТНАЯ НАГРУЗКА 6T ИЛИ 13T - СДЕЛАНО ИЗ НЕРЖАВЕЮЩЕЙ СТАЛИ СОДЕРЖИТ: - ПЛАСТИНА ОСНОВАНИЯ И 3 ШТИФТА | 116.60 |
| 7MH4115-5DB11 | 817 | SIWAREX R ВЕРХНИЙ МОДУЛЬ ДЛЯ НАГРУЗОЧНЫХ ЯЧЕЕК СЕРИИ RH - РАСЧЕТНАЯ НАГРУЗКА 28T - СДЕЛАНО ИЗ НЕРЖАВЕЮЩЕЙ СТАЛИ СОДЕРЖИТ: -ВЕРХНЯЯ ПЛАСТИНА W. СИЛОВАЯ НАПРАВЛЯЮЩАЯ ЧАСТЬ - САМОУСТАНАВЛИВАЮЩИЙСЯ БОЛТ | 568.16 |
| 7MH4115-5DC11 | 817 | SIWAREX R ПЛАСТИНА ОСНОВАНИЯ ДЛЯ НАГРУЗОЧНЫХ ЯЧЕЕК СЕРИИ RH - РАСЧЕТНАЯ НАГРУЗКА 28T - СДЕЛАНО ИЗ НЕРЖАВЕЮЩЕЙ СТАЛИ СОДЕРЖИТ: - ПЛАСТИНА ОСНОВАНИЯ И 3 ШТИФТА | 249.10 |
| 7MH4115-5GB11 | 817 | SIWAREX R ВЕРХНИЙ МОДУЛЬ ДЛЯ НАГРУЗОЧНЫХ ЯЧЕЕК СЕРИИ RH - РАСЧЕТНАЯ НАГРУЗКА 60T - СДЕЛАНО ИЗ НЕРЖАВЕЮЩЕЙ СТАЛИ СОДЕРЖИТ: -ВЕРХНЯЯ ПЛАСТИНА W. СИЛОВАЯ НАПРАВЛЯЮЩАЯ ЧАСТЬ - САМОУСТАНАВЛИВАЮЩИЙСЯ БОЛТ | 886.16 |
| 7MH4115-5GC11 | 817 | SIWAREX R ПЛАСТИНА ОСНОВАНИЯ ДЛЯ НАГРУЗОЧНЫХ ЯЧЕЕК СЕРИИ RH И RS - РАСЧЕТНАЯ НАГРУЗКА 60T - СДЕЛАНО ИЗ НЕРЖАВЕЮЩЕЙ СТАЛИ СОДЕРЖИТ: - ПЛАСТИНА ОСНОВАНИЯ И 3 ШТИФТА | 373.12 |
| 7MH4132-4AG11 | 817 | SIWAREX R ПЛАСТИНА ОСНОВАНИЯ ДЛЯ НАГРУЗОЧНЫХ ЯЧЕЕК СЕРИИ RC - РАСЧЕТНАЯ НАГРУЗКА 0.5T,1T, 2T,3.5T,5T - СДЕЛАНО ИЗ НЕРЖАВЕЮЩЕЙ СТАЛИ ВКЛЮЧАЕТ: - ПЛАСТИНА ОСНОВАНИЯ - 3 ШТИФТА | 117.66 |
| 7MH4132-4AK11 | 817 | SIWAREX R ВЕРХНИЙ МОДУЛЬ ДЛЯ НАГРУЗОЧНЫХ ЯЧЕЕК СЕРИИ RC - РАСЧЕТНАЯ НАГРУЗКА 500 KG И 1 T - СДЕЛАНО ИЗ НЕРЖАВЕЮЩЕЙ СТАЛИ ВКЛЮЧАЕТ: - ВЕРХНЯЯ ПЛАСТИНА W. СИЛОВАЯ НАПРАВЛЯЮЩАЯ ЧАСТЬ - САМОУСТАНАВЛИВАЮЩИЙСЯ БОЛТ | 204.58 |
| 7MH4132-4KK11 | 817 | SIWAREX R ВЕРХНИЙ МОДУЛЬ ДЛЯ НАГРУЗОЧНЫХ ЯЧЕЕК СЕРИИ RC - РАСЧЕТНАЯ НАГРУЗКА 2T, 3.5 T И 5T - СДЕЛАНО ИЗ НЕРЖАВЕЮЩЕЙ СТАЛИ. ВКЛЮЧАЕТ: - ВЕРХНЯЯ ПЛАСТИНА W. СИЛОВАЯ НАПРАВЛЯЮЩАЯ ЧАСТЬ - САМОУСТАНАВЛИВАЮЩИЙСЯ БОЛТ | 196.10 |