
SIMOCODE pro - это гибкая модульная система управления и защиты низковольтных электродвигателей переменного тока, работающих с постоянной частотой вращения. Она оптимизирует соединение между I&C и моторным фидером, повышает готовность системы и позволяет более экономично производить запуск, наблюдение во время работы и обслуживание системы. SIMOCODE pro, установленный в низковольтном распределительном устройстве - это интеллектуальный интерфейс между системой автоматизации высокого уровня и моторным фидером, который включает следующие компоненты: - Многофункциональное электронное устройство защиты двигателей, которое не зависит от системы автоматизации
- Гибкое программное обеспечение, позволяющее решать различные задачи управления двигателями, которые раньше решались аппаратными средствами
- Возможность получения подробных данных о работе, обслуживании и диагностике
- Открытую связь через PROFIBUS DP, который является для устройств стандартной шиной полевого уровня.
|
ОсобенностиОсновные преимущества для потребителей - Включение моторного фидера в систему управления производственным процессом через стандартную шину значительно уменьшает затраты на осуществление связи между моторным фидером и PLC.
- Распределение функций автоматизации посредством конфигурируемого управления и функций защиты в фидере экономит ресурсы в системах автоматизации и гарантирует полные функциональные возможности и защиту фидера, даже если I&C или шинная система выходят из строя.
- Получение и контроль данных о работе, обслуживании, диагностике позволяет улучшить обслуживание и повысить степень готовности фидера.
- Высокая степень модульного исполнения позволяет пользователям получить совершенное устройство для решения специфических задач, возникающих для каждого моторного фидера.
- Система SIMOCODE pro предлагает функционально разделенные и экономящие пространство решения для любого применения пользователем.
- Заменяемые управляющий модуль и программное обеспечение уменьшают количество компонентов и необходимых соединений, снижают затраты на монтаж и возможность ошибки при подключении.
- Использование электронного устройства, осуществляющего полную защиту двигателей, позволяет улучшить их эксплуатацию, гарантировать их длительную работу, иметь стабильные защитные характеристики устройства и надежное отключение после многих лет службы.
Многофункциональная полная электронная защита двигателей с номинальными токами до 820 A SIMOCODE pro предлагает всестороннюю защиту моторного фидера посредством комбинирования различных многошаговых и имеющих задержки срабатывания защитных и управляющих функций: - Обратнозависимая электронная задержка срабатывания защиты при перегрузке (Class 5 ... 40)
- Обрыв линейного провода / защита от асимметрии питающего напряжения
- Защита от блокировки (заклинивания) ротора
- Термисторная защита двигателя
- Защита от замыкания на землю
- Контроль величины предельного тока двигателя
- Контроль количества часов работы, простоя, количества пусков и т.д.
Гибкое управление двигателем на основе программного обеспечения (взамен различных аппаратных блокировок) В SIMOCODE включено множество предопределенных функций, в том числе все необходимые логические операции и блокировки. - Прямой пуск и изменение направления вращения
- Пуск переключением со звезды на треугольник (то же с изменением направления вращения)1)
- Управление двухскоростными двигателями с раздельными обмотками (переключением числа пар полюсов); то же с изменением направления вращения1)
- Управление двухскоростными двигателями с обмотками Даландера (то же с изменением направления вращения)1)
- Управление режимом ползучей скорости (позиционированием)1)
- Управление электромагнитными клапанами1)
- Управление автоматическими выключателями
- Управление устройствами плавного пуска (то же с изменением направления вращения)1)
Эти управляющие функции осуществляются посредством программного обеспечения и могут быть свободно назначены для определенных дискретных входов и выходов (включая PROFIBUS DP). Предопределенные функции могут быть гибко адаптированы для каждой задаваемой потребителем специфической конфигурации моторного фидера посредством свободно конфигурируемых логических модулей (таблицы истиности, счетчики, таймеры, граничная оценка...) и с помощью стандартных функций (контроль системной ошибки, начала аварии, внешнего повреждения...). SIMOCODE pro делает ненужными много дополнительного оборудования и цепей управления, что является результатом высокого уровня стандартизации моторных фидеров, условий его разработки и принципиальных схем. Подробно о данных по эксплуатации, обслуживанию и диагностике SIMOCODE pro делает различные данные по эксплуатации, обслуживанию и диагностике доступными, помогает определять неисправности и вовремя предотвращать их путем профилактических мероприятий. В случае сбоя неисправность может быть диагностирована, локализована и устранена очень быстро - что обеспечивает минимальные периоды простоя. Эксплуатационные данные - Отключение двигателя из-за величины тока в силовой цепи.
- Все фазные токи
- Несимметрия питающего напряжения
- Время до отключения
- Обеспечение времени охлаждения двигателя и т.д.
Данные по эксплуатации - Количество отработанных двигателем часов
- Количество часов простоя двигателя
- Количество пусков двигателя
- Количество отключений по перегрузке
- Внутренние сообщения, записанные в устройстве и т.д.
Данные по диагностике - Подробные предупреждения и сообщения о неисправностях
- Внутренняя неисправность устройства с отметкой времени события и т.д.
Коммуникация SIMOCODE pro имеет встроенный PROFIBUS DP интерфейс (SUB-D разъем или клеммное присоединение) который заменяет все индивидуальные соединения (включая клеммные блоки), которые обычно требовались для обмена данными с системами автоматизации более высокого уровня - 2-х жильный кабель на один сигнал. SIMOCODE pro поддерживает дополнительно: - Скорость передачи данных до 12 Mбит/сек,
- Автоматическое обнаружение скорости двоичной передачи
- Синхронизацию часов1) через PROFIBUS DP
- Циклическую (DPV0) и ациклическую (DPV1) передачу данных и т.д.
1) При использовании SIMOCODE pro V, базовый блок 2. |
Область примененияSIMOCODE pro часто используется для автоматизации технологических процессов, в которых время простоя оборудования приносит большие убытки (например, металлургические, цементные, нефтеперерабатывающие предприятия) и где важно предотвратить время простоя предприятия используя подробные данные об эксплуатации, обслуживании, диагностике или быстро устранить простой или неисправность оборудования при нарушении его работоспособности. SIMOCODE pro является модульным устройством, которое позволяет экономить пространство, и предназначен, в основном, для использования в центрах управления электродвигателями промышленных предприятий и электростанций. Применение Защита и управление электродвигателями - В условиях повышенной опасности (химическая, нефтяная и газовая промышленность)
- С тяжелыми условиями пуска (бумажная, цементная и металлургическая промышленность)
- На предприятиях с высоким коэффициентом готовности оборудования (цементная, нефтегазовая, химическая, обрабатывающая промышленность, энергетические предприятия)
Промышленность Сегодня SIMOCODE pro, главным образом, применяется в химической (включая нефтяную и газовую), металлургической, фармацевтической, цементной, стекольной промышленности, на предприятиях водоснабжения и водоотведения. Он также используется для применения на энергетических предприятиях, алмазо-, золото-, платинодобывающих шахтах. Базирующийся на опыте применения предшествующей системы SIMOCODE DP, SIMOCODE pro еще более приспособлен для специфических требования этих отраслей промышленности. Очень важный показатель для этих отраслей промышленности - коэффициент готовности электродвигателей и, таким образом, коэффициент готовности всего технологического процесса. Простои предприятий, вызванные неисправностями оборудования, часто сопровождаются большими убытками. По этой причине очень важно обнаружить возможные неисправности вначале и принять соответствующие меры по их предупреждению. SIMOCODE pro является современным устройством управления электродвигателями, базирующимся на многолетнем опыте использования. |
Дизайн [PDF] |
Дизайн Дополнительную информацию Вы можете получить, нажав кнопку с этим символом. |
ФункцииМногофункциональное электронное устройство защиты двигателями Токозависимая электронная защита от перегрузок с регулируемыми защитными характеристиками (Class 5 - 40) - SIMOCODE pro защищает трехфазные асинхронные двигатели в соответствии с требованиями IEC 60947-4-1. Класс расцепления имеет восемь ступеней регулировки от Class 5 до Class 40. Это позволяет очень точно подобрать время расцепления для соответствующего момента нагрузки и более эффективно использовать возможности электродвигателя. SIMOCODE pro обеспечивает двухступенчатую настраиваемую защиту от перегрузки с задержкой реакции, обеспечивающую предупреждение о перегрузке и отключение при перегрузке. Кроме того, время до расцепления по пергрузке постоянно вычисляется и может быть доступно для I&C системы. После срабатывания защиты по перегрузке обеспечивается время, необходимое для охлаждения, которое также может быть отображено.
Защита от обрыва линейного провода / несимметрии питающего напряжения - Уровень асимметрии питающего напряжения может быть проконтролирован и передан в I&C систему. Если контролируемая величина вышла за точно установленное предельное значение, определяется и запускается с выдержкой времени механизм расцепления. Если асимметрия питающего напряжения превышает 50%, время расцепления также автоматически уменьшается в соответствии с характеристикой перегрузки, начиная с момента увеличения теплообразования в электродвигателе в несимметричных условиях.
Защита от блокировки (заклинивания) ротора - Если ток в электродвигателе возрастает выше регулируемого порога блокировки (порога тока), запускается с выдержкой времени механизм расцепления SIMOCODE pro. В этом случае, например, электродвигатель может быть отключен независимо от защиты по перегрузке. Защита от блокировки ротора разрешается только после того, как истекло время,сформированное для заданного класса срабатывания. Это позволяет избежать излишне высоких тепловых и механических нагрузок на двигатель и детали приводного механизма.
Термисторная защита электродвигателя - Эта функция защиты основана на непосредственном измерении температуры температурным датчиком, установленным в обмотке статора или корпусе статора. Такая защитная функция должна использоваться, в частности, на электродвигателях с большой частотой пусков, тяжелыми условиями пуска, переменной нагрузкой и / или тормозными режимами, а также при работе с частотами вращения значительно ниже номинальных. SIMOCODE pro допускает присоединение и оценку состояния нескольких датчиков PTC соединенных последовательно в единый блок. Электрические цепи датчиков постоянно контролируются на наличие короткого замыкания или обрыва. Если температура электродвигателя увеличивается выше определенного предела или в цепи подключения датчика возникает неисправность, то устройство формирует определенный сигнал.
Контроль замыкания на землю с помощью модуля расширения - SIMOCODE pro допускает расширение контрольно-измерительным устройством для измерения токов во всех тех фазах. Благодаря этому может производиться контроль фидера электродвигателя на возможные неисправности, связанные с недопустимой величиной тока или замыканием на землю с использованием внутренних вычислений. Такой способ определения замыкания на землю возможен для двигателей в трехфазных сетях с непосредственным заземлением нейтрали или в сетях с заземлением нейтрали через сопротивление. В случае обнаружения замыкания на землю могут быть сформированы выдержка времени и защитные мероприятия.
Контроль предельной регулируемой величины тока электродвигателя - Контроль предельной величины тока применяется для контроля процессов, не зависящих от защиты по перегрузке. Выход значения тока за предельную величину ниже порога срабатывания по перегрузке может быть показателем загрязнения фильтра в насосе, первым показателем изношенности ремня привода. SIMOCODE pro осуществляет контроль свободно выбираемых верхнего и нижнего предельных значений тока двигателя. Реакция SIMOCODE pro может свободно программироваться и осуществляться с выдержкой времени при достижении порогов предупреждения или срабатывания.
Контроль количества отработанных часов, времени простоя, количества пусков - Для предотвращения времени простоя предприятия, вызванного аварией двигателя из-за чрезмерно продолжительной работы без технического обслуживания или продолжительного простоя, SIMOCODE может контролировать продолжительность работы и простоя электродвигателя. В случае нарушения установленного предела генерируется сообщение об аварии, которое показывает, что соответствующий электродвигатель должен быть обслужен или заменен. После замены электродвигателя показания счетчиков отработанных моточасов и простоя могут быть сброшены.
- Для предотвращения недопустимой тепловой или механической нагрузки на привод возможно ограничение количества пусков за определенный период. Количество оставшихся пусков сохраняется в SIMOCODE pro и доступно для дальнейшей обработки. Система аварийных предупреждений может выдавать сообщение о том, что осталось только небольшое количество пусков.
Программное обеспечение для гибкого управления электродвигателем В SIMOCODE pro предварительно заложено и доступно для использования большое количество типовых функций управления двигателями: - Прямой пуск и изменение направления вращения
- Пуск переключением со звезды на треугольник (то же с изменением направления вращения1)
- Управление двухскоростным асинхронными двигателями с раздельными обмотками (переключением числа пар полюсов); то же с изменением направления вращения1)
- Управление двухскоростными асинхронными электродвигателями с обмотками Даландера (то же с изменением направления вращения)1)
- Управление ползучей скоростью (позиционированием)1)
- Управление электромагнитными клапанами1)
- Управление автоматическими выключателями
- Управление устройствами плавного пуска (то же с изменением направления вращения)1)
Эти управляющие программы уже содержат все программные блокировки и логические операции, необходимые для функций двигателей. Устройство также контролирует соответствие текущего состояния фидера двигателя управляющей команде. В противном случае SIMOCODE pro отключает контактор электродвигателя и осуществляет сигнализацию об аварии. Управление двигателем может быть переключено или выполняться одновременно от нескольких станций управления, например: - От системы I&C через PROFIBUS DP
- От PC/PG через PROFIBUS DP
- С панели шкафа управления через модуль оператора (панель управления SIMOCODE pro)
- От PC/PG через системный интерфейс SIMOCODE pro
- От пульта местного управления, расположенного рядом с электродвигателем. В этом случае кнопки управления, выключатели и световые индикаторы подключаются к входам и выходам SIMOCODE pro.
Независимо от того, посылают ли управляющую команду SIMOCODE pro через PROFIBUS DP, используя панель оператора или через кнопки, подключенные к дискретным входам SIMOCODE pro, SIMOCODE pro может выполнить эти управляющие команды одновременно или в соответствии с разрешенными командами, определяемыми конфигурацией. Эти встроенные управляющие функции могут быть так же гибко приспособлены к каждой определяемой потребителем конфигурации фидера электродвигателя посредством свободно конфигурируемых логических модулей (таблицы истинности, счетчики, таймеры, оценки предельных значений...). Кроме того, специальные стандартные функции , встроенные в SIMOCODE pro, могут быть также использованы для расширения функций управления и защиты, например: - Контроль состояния сети1) для автоматического перезапуска двигателей после аварии электрической сети, например, с помощью отдельного реле напряжения.
- Модули аварийной сигнализации для внешних повреждений с или без ручного или автоматического подтверждения для генерации внутренних сообщений, или для срабатывания системы расцепления SIMOCODE pro в ответ на свободно определяемые события (например, активизация регулятора частоты вращения). Обозначения/названия могут также быть назначены на внешние неисправности, которые накапливаются в устройстве и которые являются, поэтому, доступными для I&C систем.
- Функция начала аварии и сброса из тепловой памяти SIMOCODE pro после расцепления, т.е. осуществление возможности немедленного перезапуска (это важно, например, для насосов, применяемых в установках пожаротушения).
- Функция тестирования для цепей фидера нагрузки, когда выключатель силовой цепи отключен для проверки цепей управления, а силовая цепь обесточена.
Подробные данные по эксплуатации, обслуживанию и диагностике SIMOCODE pro обеспечивает получение данных по эксплуатации, обслуживанию и диагностике, таких как: Эксплуатационные данные - Эксплуатационное состояние двигателя (Вкл., Откл,. вращение по часовой стрелке, притив часовой стрелки, быстро, медленно...), полученные от протекания тока
- Ток в фазах 1, 2, 3 и наибольший ток в % от номинального тока
- Несимметрия питающего напряжения в %
- Время до расцепления в сек.
- Перегрев для модели электродвигателя в %
- Сохранение времени охлаждения двигателя в сек. и т.д.
Данные по обслуживанию - Количество отработанных электродвигателем моточасов (может быть сброшено)
- Время простоя электродвигателя (может быть сброшено)
- Количество пусков электродвигателя (может быть сброшено)
- Число сохраненных допустимых пусков двигателя
- Количество отключений по перегрузке (может быть сброшено)
- Внутренние комментарии (накопленные в устройстве для каждого фидера, например, примечания для эксплуатационных событий и т.д.)
Данные по диагностике - Подробные полученные ранее предупреждения и сообщения о неисправностях (могут также быть использованы для дальнейшей обработки в устройстве или I&C системе)
- Внутренняя ошибка устройства со штампом времени
- Штамп времени произволно выбираемого состояния, предупреждения, сообщения об аварии1)
- Значение предыдущего тока отключения
- Сообщение о неисправности, нуждающееся в проверке (например, отсутствие тока в силовой цепи после команды ON) b т.д.
Автономная работа Существенная особенность SIMOCODE pro - независимость всех защит и управляющих функций от функционирования связи с I&C системой. Если шина или система автоматизации выходят из строя, функциональные возможности моторного фидера не нарушаются. Например, фидер может быть отключен при возникновении аварийного режима работы или могут быть выполнены команды управления (изменение направления вращения и т.д.). 1) Возможно только с SIMOCODE pro V, с базовым блоком 2. |
ИнтеграцияОбщие сведения Дополнительно к аппаратным и функциональным возможностям следует отметить обеспечение способности к коммуникации щита управления с использованием удобной конфигурации и программного обеспечения, способности легко встраиваться в различные варианты систем автоматизации. По этой причине система SIMOCODE pro обеспечивается соответствующими программными инструментами для последовательной, времясберегающей параметризации, конфигурации и диагностики: - SIMOCODE ES для полного обеспечения пуска и обслуживания
- OM SIMOCODE pro object manager для полной интеграции в SIMATIC S7
- SIMOCODE pro PCS7 библиотека для полной интеграции в PCS7
SIMOCODE ES Программное обеспечение для параметризации SIMOCODE pro может быть использовано на PC/PG под Windows 2000 или Windows XP. Оно доступно в двух подразделенных по функциональным возможностям версиях: - SIMOCODE ES Smart, для прямого (point-to-point) подключения SIMOCODE pro через системный интерфейс на устройстве
- SIMOCODE ES Professional, для подключения одного или нескольких устройств через PROFIBUS DP или point-to-point через системный интерфейс
С SIMOCODE ES система управления электродвигателями SIMOCODE обеспечивает легкость в применении и ясный пользовательский интерфейс, с которым можно осуществлять конфигурацию, эксплуатацию, контроль и тестирование SIMOCODE pro непосредственно на самом устройстве или с центрального пульта управления. При отображении всех эксплуатационных, сервисных и диагностических данных SIMOCODE ES обеспечивает важной информацией относительно того, требуется ли техническое обслуживание или, в случае неисправности, помогает предотвратить аварии или локализовать и устранить ее сразу после ее появления. Нежелательные простои производства могут быть предотвращены изменением параметров в режиме онлайн (даже во время работы). Гибкая функция печати, встроенная в SIMOCODE ES, позволяет всесторонне документировать все параметры или частично, например, только выбранные или измененные. OM SIMOCODE pro object manager (как часть SIMOCODE ES Professional) OM SIMOCODE pro object manager - стандартный компонент SIMOCODE ES Professional. По сравнению со стандартными GSD файлами он позволяет с целью облегчения параметрирования интегрировать SIMOCODE ES в STEP 7. При установке SIMOCODE ES Professional и OM SIMOCODE pro на PC/PG, который используется для конфигурации оборудования в SIMATIC S7, SIMOCODE Professional может быть вызван прямо от конфигурируемого оборудования. Это позволяет более просто осуществлять конфигурацию S7. Библиотека SIMOCODE pro для PCS7 Библиотека SIMOCODE pro для PCS7 может быть использована для простого и легкого процесса интегрирования SIMOCODE pro в I&C систему SIMATIC PCS7 V6. Библиотека SIMOCODE pro PCSS7 содержит блоки диагностики и драйверов, передающие данные о диагностике и состоянии SIMATIC PCS 7 , а так же и элементы (символы и лицевые панели) необходимые для контроля и управления процессами. Применение встроенного графического редактора использует редактор CFC. Технологический сигнал, обрабатывающий функции библиотеки SIMOCODE pro PCS7, основан на стандартной библиотеке SIMATIC PCS 7 (блоки драйверов, технологические блоки) и оптимально соответствует SIMOCODE pro. Пользователи, которые предварительно формировали цепи моторных приводов, используя условную технологию посредством сигнальных блоков, могут теперь легко переключитьяся на библиотеку SIMOCODE pro PCS7. Библиотека SIMOCODE pro PCS 7 поставляется на CD-ROM и позволяют пользователю запускать разрабатываемые программы на рабочем месте (единичная лицензия) включая программное обеспечение во время выполнения AS блоков в системах автоматизации. Если AS блоки должны быть использованы в дополнительных системах автоматизации, передается номер работающей лицензии, который поставляется без передачи данных. Системное руководство для SIMOCODE pro Системное руководство для SIMOCODE pro подробно описывает систему управления электродвигателями и ее функции. Оно содержит информацию о конфигурации, запуске, сервисе и обслуживании. Типовой пример реверсивного пускателя применен для быстрого обучения пользователя практическому использованию системы. Дополнительно, чтобы помочь идентифицировать и исправлять неисправности в случае сбоя, руководство содержит специальную информацию для сервиса и обслуживания. Кроме того, руководство содержит принципиальные электрические схемы, размеры устройства, технические данные системных компонентов и пособие по конфигурированию. |
Технические данные [PDF] |
Технические данныеТехнические спецификации для устройства управления и защиты электродвигателей SIMOCODE pro будут опубликованы в A&D mall, когда начнется поставка. Дополнительную информацию Вы можете получить в Интернете по адресу.
http://www.siemens.de/automation/mall |
Чертеж Дополнительную информацию Вы можете получить, нажав кнопку с этим символом. |
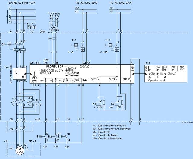
Схема подключенияРеверсивный пускатель Электрические принципиальные схемы для других функций управления содержатся в руководстве по SIMOCODE pro |
Дальнейшая информацияСистемное руководство Для выбора и проектирования оборудования рекомендуется поджробно ознакомиться с системным руководством 3UF7 970. Интернет Дополнительную информацию Вы можете получить в Интернете по адресу.
http://www.siemens.de/simocode |
Заказные данные Заказной № | Описание | Вес (кг) | Доставка | Мин. зак. (шт) | 3UF7000-1AB00-0 | БАЗОВЫЙ МОДУЛЬ 1 SIMOCODE PRO C; PROFIBUS DP-ИНТЕРФЕЙС 12 MBIT/S, RS485; 4I/3O СВОБОДНО ПАРАМЕТРИРУЕМЫЕ; US: DC 24V; ТЕРМИСТОРНАЯ ЗАЩИТА ДВИГАТЕЛЯ; МОНОСТАБИЛЬНЫЕ ВЫХОДЫ | 0.35 | 3 - 5 недель (A) | 1 | 3UF7000-1AU00-0 | БАЗОВЫЙ МОДУЛЬ 1 SIMOCODE PRO C; PROFIBUS DP-ИНТЕРФЕЙС 12 MBIT/S, RS485; 4I/3O СВОБОДНО ПАРАМЕТРИРУЕМЫЕ; US: AC/DC 110-240V; ТЕРМИСТОРНАЯ ЗАЩИТА ДВИГАТЕЛЯ; МОНОСТАБИЛЬНЫЕ ВЫХОДЫ | 0.35 | 3 - 5 недель (A) | 1 | 3UF7010-1AB00-0 | БАЗОВЫЙ МОДУЛЬ 2 SIMOCODE PRO V; PROFIBUS DP-ИНТЕРФЕЙС 12 MBIT/S, RS485; 4I/3O СВОБОДНО ПАРАМЕТРИРУЕМЫЕ; US: DC 24V; ТЕРМИСТОРНАЯ ЗАЩИТА ДВИГАТЕЛЯ; МОНОСТАБИЛЬНЫЕ ВЫХОДЫ | 0.35 | 3 - 5 недель (A) | 1 | 3UF7010-1AU00-0 | БАЗОВЫЙ МОДУЛЬ 2 SIMOCODE PRO V; PROFIBUS DP-ИНТЕРФЕЙС 12 MBIT/S, RS485; 4I/3O СВОБОДНО ПАРАМЕТРИРУЕМЫЕ; US: AC/DC 110-240V; ТЕРМИСТОРНАЯ ЗАЩИТА ДВИГАТЕЛЯ; МОНОСТАБИЛЬНЫЕ ВЫХОДЫ | 0.35 | 3 - 5 недель (A) | 1 | 3UF7100-1AA00-0 | МОДУЛЬ ИЗМЕРЕНИЯ ТОКА; ДИАПАЗОН УСТАВОК ТОКА 0,3...3A; ГАБАРИТНАЯ ШИРИНА 45MM; СКВОЗНОЕ ПОДКЛЮЧЕНИЕ | 0.1 | 3 - 5 недель (A) | 1 | 3UF7101-1AA00-0 | МОДУЛЬ ИЗМЕРЕНИЯ ТОКА; ДИАПАЗОН УСТАВОК ТОКА 2,4...25A; ГАБАРИТНАЯ ШИРИНА 45MM; СКВОЗНОЕ ПОДКЛЮЧЕНИЕ | 0.15 | 3 - 5 недель (A) | 1 | 3UF7102-1AA00-0 | МОДУЛЬ ИЗМЕРЕНИЯ ТОКА; ДИАПАЗОН УСТАВОК ТОКА 10...100A; ГАБАРИТНАЯ ШИРИНА 55MM; СКВОЗНОЕ ПОДКЛЮЧЕНИЕ | 0.35 | 3 - 5 недель (A) | 1 | 3UF7103-1AA00-0 | МОДУЛЬ ИЗМЕРЕНИЯ ТОКА; ДИАПАЗОН УСТАВОК ТОКА 20...200A; ГАБАРИТНАЯ ШИРИНА 120MM; СКВОЗНОЕ ПОДКЛЮЧЕНИЕ | 0.6 | 3 - 5 недель (A) | 1 | 3UF7103-1BA00-0 | МОДУЛЬ ИЗМЕРЕНИЯ ТОКА; ДИАПАЗОН УСТАВОК ТОКА 20...200A; ГАБАРИТНАЯ ШИРИНА 120MM; ШИННОЕ ПОДКЛЮЧЕНИЕ | 1 | 3 - 5 недель (A) | 1 | 3UF7104-1BA00-0 | МОДУЛЬ ИЗМЕРЕНИЯ ТОКА; ДИАПАЗОН УСТАВОК ТОКА 63...630A; ГАБАРИТНАЯ ШИРИНА 145MM; ШИННОЕ ПОДКЛЮЧЕНИЕ | 1.75 | 3 - 5 недель (A) | 1 | 3UF7110-1AA00-0 | МОДУЛЬ ИЗМЕРЕНИЯ ТОКА/НАПРЯЖЕНИЯ; ДИАПАЗОН УСТАВОК ТОКА 0,3...3A; ОПРЕДЕЛЕНИЕ НАПРЯЖЕНИЯ ДО 690V; ГАБАРИТНАЯ ШИРИНА 45MM; СКВОЗНОЕ ПОДКЛЮЧЕНИЕ | 0.15 | 6 - 8 недель (C) | 1 | 3UF7111-1AA00-0 | МОДУЛЬ ИЗМЕРЕНИЯ ТОКА/НАПРЯЖЕНИЯ; ДИАПАЗОН УСТАВОК ТОКА 2,4...25A; ОПРЕДЕЛЕНИЕ НАПРЯЖЕНИЯ ДО 690V; ГАБАРИТНАЯ ШИРИНА 45MM; СКВОЗНОЕ ПОДКЛЮЧЕНИЕ | 0.2 | 3 - 5 недель (A) | 1 | 3UF7112-1AA00-0 | МОДУЛЬ ИЗМЕРЕНИЯ ТОКА/НАПРЯЖЕНИЯ; ДИАПАЗОН УСТАВОК ТОКА 10...100A; ОПРЕДЕЛЕНИЕ НАПРЯЖЕНИЯ ДО 690V; ГАБАРИТНАЯ ШИРИНА 55MM; СКВОЗНОЕ ПОДКЛЮЧЕНИЕ | 0.4 | 3 - 5 недель (A) | 1 | 3UF7113-1AA00-0 | МОДУЛЬ ИЗМЕРЕНИЯ ТОКА/НАПРЯЖЕНИЯ; ДИАПАЗОН УСТАВОК ТОКА 20...200A; ОПРЕДЕЛЕНИЕ НАПРЯЖЕНИЯ ДО 690V; ГАБАРИТНАЯ ШИРИНА 120MM; СКВОЗНОЕ ПОДКЛЮЧЕНИЕ | 0.7 | 3 - 5 недель (A) | 1 | 3UF7113-1BA00-0 | МОДУЛЬ ИЗМЕРЕНИЯ ТОКА/НАПРЯЖЕНИЯ; ДИАПАЗОН УСТАВОК ТОКА 20...200A; ОПРЕДЕЛЕНИЕ НАПРЯЖЕНИЯ ДО 690V; ГАБАРИТНАЯ ШИРИНА 120MM; ШИННОЕ ПОДКЛЮЧЕНИЕ | 1 | 3 - 5 недель (A) | 1 | 3UF7114-1BA00-0 | МОДУЛЬ ИЗМЕРЕНИЯ ТОКА/НАПРЯЖЕНИЯ; ДИАПАЗОН УСТАВОК ТОКА 63...630A; ОПРЕДЕЛЕНИЕ НАПРЯЖЕНИЯ ДО 690V; ГАБАРИТНАЯ ШИРИНА 145MM; ШИННОЕ ПОДКЛЮЧЕНИЕ | 1.75 | 3 - 5 недель (A) | 1 | 3UF7150-1AA00-0 | DECOUPLING MODULE; F. CONNECTING IN SERIES BEFORE CURRENT/VOLTAGE MEASURING MODULE AT THE SYSTEM INTERFACE WHEN USING NON-GROUNDED NETWORKS | 0.15 | 3 - 5 недель (P) | 1 | 3UF7200-1AA00-0 | ПАНЕЛЬ ОПЕРАТОРА ДЛЯ МОНТАЖА НА ДВЕРИ ШКАФА; ПОДКЛЮЧАЕТСЯ К БАЗОВОМУ МОДУЛЮ ИЛИ К МОДУЛЮ РАСШИРЕНИЯ; 10 СВЕТОДИОДОВ ДЛЯ ИНДИКАЦИИ СОСТОЯНИЙ И 5 КНОПОК ДЛЯ РУЧНОГО УПРАВЛЕНИЯ | 0.1 | 3 - 5 недель (A) | 1 | 3UF7210-1AA00-0 | CONTROL BLOCK W. DISPLAY; FOR SIMOCODE PRO V; INSTALLED IN CONTROL CABINET DOOR OR FRONT PLATE; CAN BE PLUGGED ONTO BASIC DEVICE 2 OR EXPANSION MODULE; 7 LEDS FOR STATUS DISPLAY AND 4 USER-ASSIGNABLE KEYS FOR MANUAL CONTROL | 0.15 | 3 - 5 недель (P) | 1 | 3UF7300-1AB00-0 | МОДУЛЬ ДИСКРЕТНЫХ СИГНАЛОВ; 4 ВХОДА И 2 РЕЛЕЙНЫХ ВЫХОДА; НАПРЯЖЕНИЕ ВХОДОВ DC 24V; МОНОСТАБИЛЬНЫЕ РЕЛЕЙНЫЕ ВЫХОДЫ; МАКСИМАЛЬНО ВОЗМОЖНО 2 МОДУЛЯ ДИСКРЕТНЫХ СИГНАЛОВ ДЛЯ ОДНОГО БАЗОВОГО МОДУЛЯ 2 | 0.15 | 3 - 5 недель (A) | 1 | 3UF7300-1AU00-0 | МОДУЛЬ ДИСКРЕТНЫХ СИГНАЛОВ; 4 ВХОДА И 2 РЕЛЕЙНЫХ ВЫХОДА; НАПРЯЖЕНИЕ ВХОДОВ AC/DC 110-240V МОНОСТАБИЛЬНЫЕ РЕЛЕЙНЫЕ ВЫХОДЫ; МАКСИМАЛЬНО ВОЗМОЖНО 2 МОДУЛЯ ДИСКРЕТНЫХ СИГНАЛОВ ДЛЯ ОДНОГО БАЗОВОГО МОДУЛЯ 2 | 0.15 | 3 - 5 недель (A) | 1 | 3UF7310-1AB00-0 | МОДУЛЬ ДИСКРЕТНЫХ СИГНАЛОВ; 4 ВХОДА И 2 РЕЛЕЙНЫХ ВЫХОДА; НАПРЯЖЕНИЕ ВХОДОВ DC 24V; БИСТАБИЛЬНЫЕ РЕЛЕЙНЫЕ ВЫХОДЫ; МАКСИМАЛЬНО ВОЗМОЖНО 2 МОДУЛЯ ДИСКРЕТНЫХ СИГНАЛОВ ДЛЯ ОДНОГО БАЗОВОГО МОДУЛЯ 2 | 0.15 | 3 - 5 недель (A) | 1 | 3UF7310-1AU00-0 | МОДУЛЬ ДИСКРЕТНЫХ СИГНАЛОВ; 4 ВХОДА И 2 РЕЛЕЙНЫХ ВЫХОДА; НАПРЯЖЕНИЕ ВХОДОВ AC/DC 110-240V; БИСТАБИЛЬНЫЕ РЕЛЕЙНЫЕ ВЫХОДЫ; МАКСИМАЛЬНО ВОЗМОЖНО 2 МОДУЛЯ ДИСКРЕТНЫХ СИГНАЛОВ ДЛЯ ОДНОГО БАЗОВОГО МОДУЛЯ 2 | 0.15 | 3 - 5 недель (A) | 1 | 3UF7400-1AA00-0 | МОДУЛЬ АНАЛОГОВЫХ СИГНАЛОВ; 2 ВХОДА И 1 ВЫХОД ДЛЯ АНАЛОГОВЫХ СИГНАЛОВ 0/4...20MA; МАКСИМАЛЬНО ВОЗМОЖНО 1 МОДУЛЬ АНАЛОГОВЫХ СИГНАЛОВ ДЛЯ ОДНОГО БАЗОВОГО МОДУЛЯ 2 | 0.15 | 3 - 5 недель (A) | 1 | 3UF7500-1AA00-0 | МОДУЛЬ ЗАЩИТЫ ОТ ЗАМЫКАНИЯ НА ЗЕМЛЮ; 1 ВХОД ДЛЯ ПОДКЛЮЧЕНИЯ СУММИРУЮЩЕГО ТРАНСФОРМАТОРА ТОКА 3UL22 ; МАКСИМАЛЬНО ВОЗМОЖНО : 1 МОДУЛЬ ЗАЩИТЫ ДЛЯ 1 БАЗОВОГО МОДУЛЯ 2 | 0.15 | 3 - 5 недель (A) | 1 | 3UF7700-1AA00-0 | МОДУЛЬ ЗАЩИТЫ ОТ ПЕРЕГРЕВА; 3 ВХОДА ДЛЯ ПОДКЛЮЧЕНИЯ ДО 3 ДАТЧИКОВ ТЕМПЕРАТУРЫ; МАКСИМАЛЬНО ВОЗМОЖНО : 1 МОДУЛЬ ЗАЩИТЫ ДЛЯ 1 БАЗОВОГО МОДУЛЯ 2 | 0.15 | 3 - 5 недель (A) | 1 | |
Аксессуары Заказной № | Описание | Вес (кг) | Доставка | Мин. зак. (шт) | 3RB1900-0B | ВСТАВНЫЕ КОНТАКТЫ ДЛЯ ВИНТОВОГО МОНТАЖА НА МОНТАЖНОЙ ПЛАТЕ (1 КОМПЛЕКТ = 10 ШТУК) | 0.1 | 6 - 8 недель (C) | 10 | 3RP1903 | АДАПТЕР ДЛЯ ВИНТОВОГО ПОДКЛЮЧЕНИЯ ДЛЯ УСТРОЙСТВ С 1 ИЛИ 2 ПЕРЕКИДНЫМИ КОНТАКТАМИ | 0.002 | 3 - 5 недель (P) | 10 | 3RT1955-4G | РАМОЧНЫЙ КЛЕММНЫЙ БЛОК ДЛЯ КОНТАКТОРОВ ТИПОРАЗМЕР S6, 3RT1054 ДЛЯ ПЕРЕГРУЗКА РЕЛЕЙНЫЕ 3RB105 (ПРЕДПОЧТИТЕЛЬНЫЙ ТИП) | 0.23 | 3 - 5 недель (P) | 1 | 3RT1956-4EA1 | КЛЕММНАЯ КРЫШКА ДЛЯ ШИННОГО ПОДСОЕДИНЕНИЯ ДЛЯ КОНТАКТОРОВ ТИПОРАЗМЕР S6, 3RT1.5 ДЛЯ РЕЛЕ ПЕРЕГРУЗКИ 3RB105 | 0.07 | 3 - 5 недель (P) | 1 | 3RT1956-4EA2 | КЛЕММНАЯ КРЫШКА ДЛЯ РАМОЧНОГО КЛЕММНОГО БЛОКА ДЛЯ КОНТАКТОРОВ ТИПОРАЗМЕР S6, 3RT1.5 ДЛЯ РЕЛЕ ПЕРЕГРУЗКИ 3RB105 | 0.03 | 3 - 5 недель (P) | 1 | 3RT1956-4EA3 | КЛЕММНАЯ КРЫШКА ДЛЯ СОЕДИНЕНИЯ МЕЖДУ КОНТАКТОРОМ/ РЕЛЕ ПЕРЕГРУЗКИ S6 (ПРЕДПОЧТИТЕЛЬНЫЙ ТИП) | 0.02 | 3 - 5 недель (P) | 1 | 3RT1956-4G | РАМОЧНЫЙ КЛЕММНЫЙ БЛОК ДЛЯ КОНТАКТОРОВ ТИПОРАЗМЕР S6, 3RT1.5 ДЛЯ РЕЛЕ ПЕРЕГРУЗКИ 3RB105 | 0.26 | 3 - 5 недель (P) | 1 | 3RT1966-4EA1 | КЛЕММНАЯ КРЫШКА ДЛЯ ШИННОГО ПОДСОЕДИНЕНИЯ ДЛЯ КОНТАКТОРОВ ТИПОРАЗМЕР S10/S12 ДЛЯ РЕЛЕ ПЕРЕГРУЗКИ 3RB106 | 0.13 | 3 - 5 недель (P) | 1 | 3RT1966-4EA2 | КЛЕММНАЯ КРЫШКА ДЛЯ РАМОЧНОГО КЛЕММНОГО БЛОКА ДЛЯ КОНТАКТОРОВ ТИПОРАЗМЕР S10/S12 ДЛЯ РЕЛЕ ПЕРЕГРУЗКИ 3RB106 | 0.04 | 3 - 5 недель (P) | 1 | 3RT1966-4EA3 | КЛЕММНАЯ КРЫШКА ДЛЯ СОЕДИНЕНИЯ МЕЖДУ КОНТАКТОРОМ/ РЕЛЕ ПЕРЕГРУЗКИ S6/S12 (ПРЕДПОЧТИТЕЛЬНЫЙ ТИП) | 0.06 | 3 - 5 недель (P) | 1 | 3RT1966-4G | РАМОЧНЫЙ КЛЕММНЫЙ БЛОК ДЛЯ КОНТАКТОРОВ ТИПОРАЗМЕР S10/S12 ДЛЯ РЕЛЕ ПЕРЕГРУЗКИ 3RB106 | 0.676 | 3 - 5 недель (P) | 1 | 3UF7900-0AA00-0 | МОДУЛЬ ПАМЯТИ ДЛЯ ПАРАМЕТРИРОВАНИЯ SIMOCODE PRO БЕЗ ПРИМЕНЕНИЯ PC | 0.01 | 3 - 5 недель (A) | 1 | 3UF7910-0AA00-0 | ВТЫЧНОЙ АДРЕСАТОР ДЛЯ УСТАНОВКИ АДРЕСА PROFIBUS БЕЗ ПРИМЕНЕНИЯ PC | 0.03 | 4 - 6 недель (B) | 1 | 3UF7920-0AA00-0 | АДАПТЕР ДЛЯ МОНТАЖА СИСТЕМНОГО ИНТЕРФЕЙСА НА ДВЕРИ ШКАФА; ПОЗВОЛЯЕТ ПОДКЛЮЧАТЬСЯ К СИСТЕМНОМУ ИНТЕРФЕЙСУ НА ДВЕРИ ШКАФА | 0.03 | 3 - 5 недель (A) | 1 | 3UF7922-0AA00-0 | ADAPTER, FOR CONTROL BLOCK 3UF720 | 0.15 | 4 - 6 недель (B) | 1 | 3UF7925-0AA00-0 | LABELING STRIP, FOR CONTROL BLOCK 3UF720, FOR LABELING THE BUTTONS | 15 | 4 - 6 недель (B) | 400 | 3UF7925-0AA01-0 | LABELING STRIP, FOR CONTROL BLOCK W. DISPLAY 3UF721, FOR LABELING THE BUTTONS | 15 | 4 - 6 недель (B) | 600 | 3UF7925-0AA02-0 | LABELING STRIP, FOR CONTROL BLOCK 3UF720, FOR LABELING THE LEDS | 15 | 4 - 6 недель (B) | 1200 | 3UF7930-0AA00-0 | СОЕДИНИТЕЛЬНЫЙ КАБЕЛЬ; ДЛИНА 0,025M; ДЛЯ СОЕДИНЕНИЯ БАЗОВОГО МОДУЛЯ С МОДУЛЕМ РАСШИРЕНИЯ ЧЕРЕЗ СИСТЕМНЫЙ ИНТЕРФЕЙС | 0.01 | 4 - 6 недель (B) | 1 | 3UF7931-0AA00-0 | СОЕДИНИТЕЛЬНЫЙ КАБЕЛЬ; ДЛИНА 0,1M; ДЛЯ СОЕДИНЕНИЯ БАЗОВОГО МОДУЛЯ С МОДУЛЕМ ИЗМЕРЕНИЯ ТОКА, МОДУЛЕМ ИЗМЕРЕНИЯ ТОКА/НАПРЯЖЕНИЯ, ПАНЕЛЬЮ ОПЕРАТОРА ИЛИ МОДУЛЕМ РАСШИРЕНИЯ ЧЕРЕЗ СИСТЕМНЫЙ ИНТЕРФЕЙС | 0.01 | 4 - 6 недель (B) | 1 | 3UF7932-0AA00-0 | СОЕДИНИТЕЛЬНЫЙ КАБЕЛЬ; ДЛИНА 0,5M; ДЛЯ СОЕДИНЕНИЯ БАЗОВОГО МОДУЛЯ С МОДУЛЕМ ИЗМЕРЕНИЯ ТОКА, МОДУЛЕМ ИЗМЕРЕНИЯ ТОКА/НАПРЯЖЕНИЯ, ПАНЕЛЬЮ ОПЕРАТОРА ИЛИ МОДУЛЕМ РАСШИРЕНИЯ ЧЕРЕЗ СИСТЕМНЫЙ ИНТЕРФЕЙС | 0.02 | 4 - 6 недель (B) | 1 | 3UF7932-0BA00-0 | CONNECTION CABLE; LENGTH 0,5M; ROUND; CONNECTION OF BASIC UNIT TO CURRENT MEASURING MODULE, CURRENT/VOLTAGE MEASUR. MODULE, OPERATOR PANEL OR TO EXPANSION MODULES VIA SYSTEM INTERFACE | 0.05 | 3 - 5 недель (A) | 1 | 3UF7933-0BA00-0 | CONNECTION CABLE; LENGTH 2,5M; ROUND; CONNECTION OF BASIC UNIT TO CURRENT MEASURING MODULE, CURRENT/VOLTAGE MEASUR. MODULE, OPERATOR PANEL OR TO EXPANSION MODULES VIA SYSTEM INTERFACE | 0.15 | 3 - 5 недель (A) | 1 | 3UF7935-0AA00-0 | CONNECTION CABLE; LENGTH 0,3M; FLAT; CONNECTION OF BASIC UNIT TO CURRENT MEASURING MODULE, CURRENT/VOLTAGE MEASUR. MODULE, OPERATOR PANEL OR TO EXPANSION MODULES VIA SYSTEM INTERFACE | 0.02 | 3 - 5 недель (A) | 1 | 3UF7937-0BA00-0 | CONNECTION CABLE; LENGTH 1,0M; ROUND; CONNECTION OF BASIC UNIT TO CURRENT MEASURING MODULE, CURRENT/VOLTAGE MEASUR. MODULE, OPERATOR PANEL OR TO EXPANSION MODULES VIA SYSTEM INTERFACE | 0.1 | 3 - 5 недель (A) | 1 | 3UF7940-0AA00-0 | PC-КАБЕЛЬ ДЛЯ СВЯЗИ PC С SIMOCODE PRO ЧЕРЕЗ СИСТЕМНЫЙ ИНТЕРФЕЙС | 0.15 | 4 - 6 недель (B) | 1 | 3UF7950-0AA00-0 | INTERFACE COVERS FOR THE SYSTEM INTERFACE | 0.1 | 3 - 5 недель (A) | 5 | 3UF7970-0AA00-0 | СИСТЕМНОЕ РУКОВОДСТВО ПО SIRIUS MOTOR MANAGEMENT SIMOCODE PRO (ENGLISH) С ЗАЛОГОВОЙ СТОИМОСТЬЮ | 0.85 | 4 - 6 недель (B) | 1 | 3UF7970-0AA01-0 | СИСТЕМНОЕ РУКОВОДСТВО ПО SIRIUS MOTOR MANAGEMENT SIMOCODE PRO (GERMAN) С ЗАЛОГОВОЙ СТОИМОСТЬЮ | 0.85 | 4 - 6 недель (B) | 1 | 3UF7970-0AA02-0 | SYSTEM MANUAL FOR SIRIUS MOTOR MANAGEMENT SIMOCODE PRO (FRENCH) NOMINAL CHARGE | 0.85 | 4 - 6 недель (B) | 1 | 3UF7982-0AA00-0 | PCS 7-БИБЛИОТЕКА ДЛЯ SIMOCODE PRO V6.0; AS-БЛОКИ И ЛИЦЕВЫЕ ПЛАТЫ ДЛЯ ИНТЕГРАЦИИ SIMOCODE PRO В SIMATIC PCS 7 ДЛЯ PCS 7-ВЕРСИЯ V6.0; SOFTWARE РАЗРАБОТЧИКА ДЛЯ ОДНОЙ СТАНЦИИ РАЗРАБОТЧИКА (ОДНА ЛИЦЕНЗИЯ), ВКЛЮЧАЕТ RUNTIME SOFTWARE, КОТОРОЕ МОЖЕТ БЫТЬ ИСПОЛЬЗВ ОДНОЙ СИСТЕМЕ АВТОМАТИЗАЦИИ (ОДНА ЛИЦЕНЗИЯ); GERMAN/ENGL. ПОСТАВКА: НА CD | 0.24 | 3 - 5 недель (A) | 1 | 3UF7982-0AA01-0 | PCS 7-БИБЛИОТЕКА ДЛЯ SIMOCODE PRO V6.X; AS-БЛОКИ ДЛЯ ИНТЕГРАЦИИ SIMOCODE PRO В SIMATIC PCS 7 ДЛЯ PCS 7-ВЕРСИЯ V6.X; RUNTIME SOFTWARE, КОТОРАЯ МОЖЕТ БЫТЬ ИСПОЛЬЗОВАНА В ОДНОЙ СИСТЕМЕ АВТОМАТИЗАЦИИ (ОДНА ЛИЦЕНЗИЯ); ЛИЦЕНЗИЯ БЕЗ SOFTWARE И ДОКУМЕНТАЦИИ | 0.001 | 3 - 5 недель (A) | 1 | 3UF7982-0AA02-0 | PCS 7 BLOCK LIBRARY, SIMOCODE PRO V6.1; AS BLOCKS AND FACEPLATES FOR INTEGRATION OF SIMOCODE PRO IN PCS 7 PROCESS CONTROL SYSTEM FOR THE PCS 7 VERSION V6.1; ENGINEERING SOFTWARE FOR AN ENGINEERING STATION (SINGLE LICENSE) INCL. RUNTIME SOFTWARE FOR EXECUT | 0.24 | 3 - 5 недель (A) | 1 | 3UF7982-0AA10-0 | PCS 7 BLOCK LIBRARY, SIMOCODE PRO V7.0; AS BLOCKS AND FACEPLATES FOR INTEGRATION OF SIMOCODE PRO IN PCS 7 PROCESS CONTROL SYST. FOR THE PCS 7 VERSION V7.0; ENGINEERING SOFTWARE FOR AN ENGINEERING STATION (SINGLE LICENSE) INCL. RUNTIME SOFTWARE FOR EXECUTI | 0.24 | 3 - 5 недель (A) | 1 | 3UF7982-0AA11-0 | PCS 7 BLOCK LIBRARY, SIMOCODE PRO V7.X; AS BLOCKS FOR INTEGRATION OF SIMOCODE PRO IN PCS 7 PROCESS CONTROL SYSTEM FOR THE PCS 7 VERSION V7.X; RUNTIME FOR EXECUTING THE AS BLOCK IN AN AUTOMATION SYSTEM (SINGLE LICENSE); LICENSE WITHOUT SOFTWARE AND DOCUMEN | 0.001 | 3 - 5 недель (A) | 1 | 3UF7982-0AA13-0 | UPGRADE, FOR THE PCS 7 BLOCK LIBRARY, SIMOCODE PRO V6.0 OR V6.1 TO THE VERSION SIMOCODE PRO V7.0, FOR INTEGRATION OF SIMOCODE PRO IN PCS 7 PROCESS CONTROL SYST.; FOR THE PCS 7 VERSION V7.0; (SINGLE LICENSE); GERMAN/ ENGLISH/FRENCH; SUPPLIED ON CD | 0.24 | 3 - 5 недель (A) | 1 | 3ZS1312-1CC10-0YA0 | SIMOCODE ES SMART; PARAMETERIZATION AND SERVICE SOFTWARE FOR SIMOCODE PRO; PARAMETERIZATION VIA SYSTEM INTERFACE WITH WINDOWS 2000/XP; WITHOUT PC-CABLE; DELIVERY: CD; SINGLE LICENSE | 0.23 | 4 - 6 недель (B) | 1 | 3ZS1312-2CC10-0YA0 | SIMOCODE ES PROFESSIONAL; PARAMETERIZATION AND SERVICE SOFTWARE FOR SIMOCODE PRO; PARAMETERIZATION VIA PROFIBUS AND SYSTEM INTERFACE WITH WINDOWS 2000/XP; WITHOUT PC-CABLE; INCL. STEP7 - OBJECT-MANAGER; DELIVERY: CD; SINGLE LICENSE | 0.23 | 4 - 6 недель (B) | 1 | 3ZS1312-3CC10-0YA0 | SIMOCODE ES GRAPHIC; FOR GRAPHICAL PARAMETRIZATION OF SIMOCODE PRO; AS ADD-ON TO SIMOCODE ES SMART/ PROFESSIONAL | 0.23 | 3 - 5 недель (A) | 1 | |
|