0

Разделы

WS100

 

SITRANS WS100 компактный датчик скорости, среднего разрешения. Для перерабатывающей и добывающей промышленности.

 


Особенности

WS100
  • Компактный, легкий.
  • Хорошее решение для точных измерений, подходящий для переменных скоростей вала.
  • Высокий скрок службы. 

 


Область применения

WS100

 

SITRANS WS100 датчик скорости, при работе в составе конвейерных весов, передает сигнал интегратору (Milltronics BW100 или BW500, или SIWAREX FTC модуль), который вычисляет массу передаваемого материала. От 1.22 кг (2.68 фунта) и более, легок в установке и долговечен в работе

WS100 преобразовывает вращение вала в сигнал из 8 импульсов в секунду. Этот сигнал передаеться в интегратор Milltronics. Интегратор преобразовывает сигнал для определения скорости ленты конвейера, расхода материала. Так же возможно использовать сигнал этого датчика для передачи параметров вращения вала в контроллер системы управления (например для сбора параметров наработки ковейера).

 


Дизайн

WS100

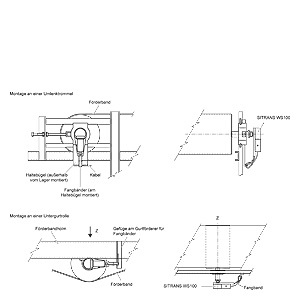
В датчике скорости SITRANS WS100 входной вал крепится к вращающемуся валу шкива (барабана), приводимому в действие лентой конвейера, с помощью резьбового соединения либо магнитного крепления. Входной вал является также опорой для корпуса датчика, не имеющего крепления к неподвижным элементам конструкции. Гибкий тормозной ремень не позволяет датчику вращаться вместе со шкивом, при этом не вызывая перегрузки подшипника, и может крепиться к любому жёсткому элементу конструкции конвейера вблизи датчика.

При монтаже убедитесь в концентричности осей датчика и шкива, чтобы избежать перегрузки подшипника.

При монтаже на магнитный держатель убедитесь, что плоскость шкива ровная и не имеет заусенцев и повреждений, мешающих плотному прилеганию магнитного крепления. Присоедините датчик скорости SITRANS WS100 к валу; магнитный держатель отцентрируется автоматически по мере вращения шкива. 

Монтаж WS100

 


Технические данные

WS100

 

Принцип работы

 

Принцип измерения

Специальный бесконтактный датчик выдает импульсы на интегратор

Типичное приложение

Различные ленточные конвейеры

Вход

Вращение вала от 15 до 1.500 оборотов в минуту, двунаправленное

 

Вращение вала от 15 до 1.500 оборотов в минуту, двунаправленное с присоединением через магнит

Выход

  • 8 имп./оборот
  • 0 to 200 Гц, 0 to 40 Гц с присоединением через магнит
  • WS100 стандарт: открытый коллектор, 25 mA
  • WS100 IS: ток нагрузки, от 0 до 15 мA
  • Минимальная частота для интегратора 2 Гц

Условия эксплуатации

 

Температура окружающей среды

Стандарт: от -40 до +110 °C

 

Версия IS: от -25 до 100 °C

Корпус

Полипропиленовый корпус, крышка из нерж. стали 304 (1.4301)

 

Вал, подшибники и механические части из нерж. стали 304 (1.4301)

Электропитание

 

 

Стандарт: 4.5 ... 28 В DC, 16 мА

 

Версия IS: 5 ... 25 В DC от усилителя

Кабель

 

Рекомендовано

Стандарт: трехжильный экранированный, 0,82 мм2 (американская классификация проводов 18 AWG).

Макс. длина 300 м

 

Версия IS: духжильный экранированный 0,324 мм2 (американская классификация проводов 22 AWG). 

Макс. длина 300 м

Сертификаты и допуски

 

 

Стандарт:  CE, C-TICK

 

Версия IS:  CE, ATEX и CSA,  с подходящим, искробезопасным разделительным усилителем Pepperl + Fuchs

 

 


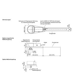
Чертеж

WS100

 

Размеры WS100

 

 


Заказные данные

Цена на сайте указана розничная в ЕВРО без учета НДС.Для уточнения цены и размера предоставляемой скидки - звоните или присылайте заявки

Заказной номерPGОписание продуктаЦена
7MH7176-.....854SITRANS WS100 SPEED SENSOR A COMPACT, MEDIUM- RESOLUTION, PULLEY SHAFT- DRIVEN BELT SPEED SENSOR WITH MAGNETIC MOUNTING; IDEAL FOR AGGREGATE AND MINERAL PROCESSING INDUSTRIES. 737.76

 


Аксессуары

Цена на сайте указана розничная в ЕВРО без учета НДС.Для уточнения цены и размера предоставляемой скидки - звоните или присылайте заявки

Заказной номерPGОписание продуктаЦена
7MH7723-1AS8ZMЗАПЧАСТЬ ДЛЯ ДАТЧИКА СКОРОСТИ RBSS 233.20
7MH7723-1EB8ZMSWITCH ISOLATOR BARRIER,115 V AC, SPARE 642.36
7MH7723-1EC8ZMSWITCH ISOLATOR BARRIER, 230 VAC,SPARE 642.36
7MH7723-1GA8ZMRBSS CE, MAGNETIC PROXIMITY SWITCH, 4.5 TO 28V 126.14